朝晖八区3室1厅1卫南朝向320.00万元出售
-
320万元
总价
-
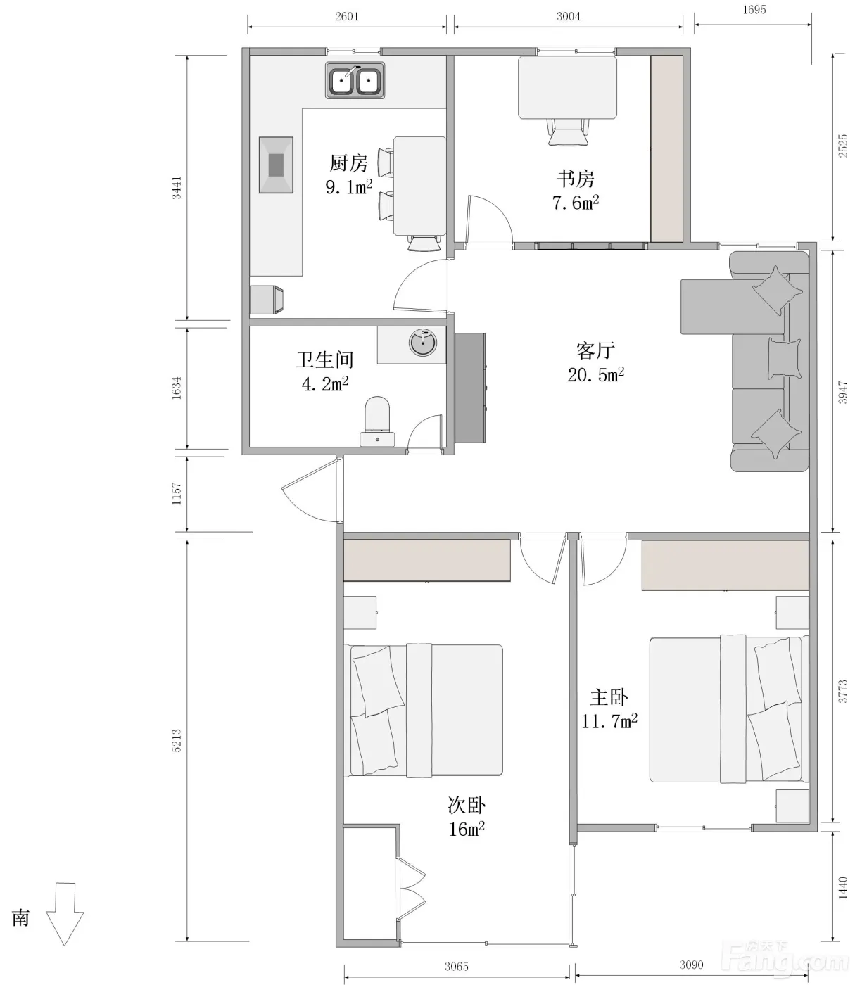
3室1厅1卫
户型
-
84.11㎡
建筑面积
买房加房产交流群,省钱不踩雷
3000+人正在热聊
加入群聊
-
单价
38045元/平米
- 挂牌价格解析
-
楼层
中层/5层
- 咨询楼层
-
套内
暂无数据
- 咨询套内使用面积
-
朝向
南
-
年代
1989
-
发布
2024-07-18
-
咨询总首付
首付约107.3万
首付税费及佣金情况 -
深度测评
小区朝晖八区(拱墅-朝晖)
-
更多
楼户比、楼层高度、交易历史、抵押信息
业主自评
-
秋月春风700
加入房天下566天
接电时间:09:00-22:00
有别于朝晖其他房子,98年房子,相对较新,当年为公安局处长楼,房子质量,得房率都很高。 离潮王路地铁站100米,小区后面有金松公园。 房子内设施保护较好,翻新下墙面即可领包入住
有别于朝晖其他房子,98年房子,相对较新,当年为公安局处长楼,房子质量,得房率都很高。 离潮王路地铁站100米,小区后面有金松公园。 房子内设施保护较好,翻新下墙面即可领包入住
周边配套
地址:潮王路30号
交通综合评分
查看全部5.2
“一般”
超过杭州93.4%的小区
-
地铁公交
10.0
-
城际交通
4.0
本月均价 29743元/m²
环比上月 上涨 0.63%
同比去年 下跌 4.32%
猜你喜欢
同小区其它房源
户型齐全,主打户型方正,主卧朝南二居
朝晖八区户型主要有49平-72平的户型方正,主卧朝南的二居 、57平-106平的户型方正,明卫,明厨,主卧朝南的三居 。
*获取完整户型报告,同时会有免费语音讲解服务
买房加房产交流群,省钱不踩雷
3000+人正在热聊
加入群聊
联系业主
免责声明:房源信息由网站用户提供,其真实性、合法性由信息提供者负责,最终以政府部门登记备案为准。本网站不声明或保证内容之正确性和可靠性,购买该房屋时,请谨慎核查。入学情况仅凭历史经验总结,在此不承诺升学事宜。请您在签订合同之前,切勿支付任何形式的费用,以免上当受骗。

