价可谈亚运城天峯三区三房高层视野佳 采光好
-
215万
总价
-
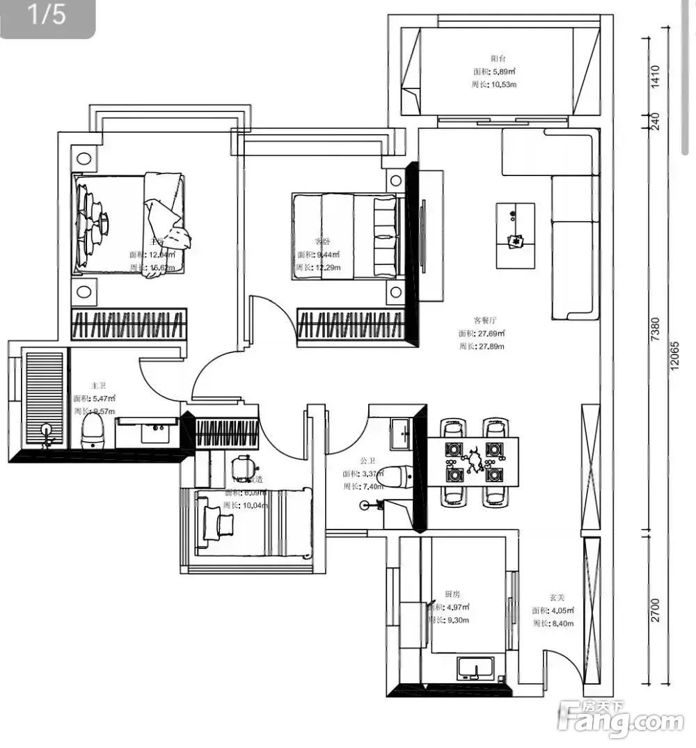
3室2厅1卫
户型
-
89.53㎡
建筑面积
买房加房产交流群,省钱不踩雷
3000+人正在热聊
-
单价
24014元/平米
- 挂牌价格解析
-
楼层
高层/57层
- 咨询楼层
-
套内
88.53㎡
- 咨询套内使用面积
-
楼型
板楼
-
朝向
南北
-
装修
简装修
-
年代
2020
-
发布
2025-12-01
-
咨询总首付
首付约47.2万
首付税费及佣金情况 -
深度测评
小区广州亚运城天峯(番禺-亚运城)
-
更多
楼户比、楼层高度、交易历史、抵押信息
房源描述(1)
-
核心卖点问经纪人
一、 房源优势: 1、亚运城天峯三区正房型楼层价出售 2、挑高客厅 宽敞大气 3、一般装修装修 二、 户型介绍: 户型:3室2厅1厨1卫1阳台 ,格局方正,使用率超赞 1、客厅挑高、宽敞舒适、阳光非常充足 2、卧室搭配的很新颖,使用率非常之高
-
业主心态问经纪人
因业主因资金需要周转、所以急售房子、有诚心的可以咨询、低价转让。
-
小区配套问经纪人
小区地理位置佳,绿化环境优越整洁,居民素质高,物业管理完善,适宜居住
-
服务介绍问经纪人
服务理念:没有 ,只有更好。 五星服务:贴心,专心,省心,放心,开心。
-
税费分析房贷计算
关于本房的税费信息情况,请电话联系我,我将详细的为您讲解!
-
户型解读问经纪人
房屋拥有相对宽松的尺寸,布局通透,动静分离,设计豪华
周边配套
交通综合评分
查看全部超过广州74.1%的小区
-
地铁公交
8.0
-
驾车出行
9.0
本月均价 20998元/m²
环比上月 下跌 1.47%
同比去年 下跌 15.5%
猜你喜欢
同小区其它房源
户型齐全,主打南北通透,全明格局,户型方正二居
广州亚运城天峯户型主要有89平-103平的南北通透,全明格局,户型方正的二居 、123平-126平的南北通透,全明格局,户型方正的三居 、133平-135平的南北通透,全明格局,户型方正的四居 。
*获取完整户型报告,同时会有免费语音讲解服务
-
15559元/㎡
本月挂牌均价
-
4.43%
环比上月
买房加房产交流群,省钱不踩雷
3000+人正在热聊
- 免费咨询
- 专业服务
- 区域解读
- 户型分析

