内部专属折!通州万达北,八里桥,精装三居,一线合景,22线地
-
404万
总价
-
3室2厅1卫
户型
-
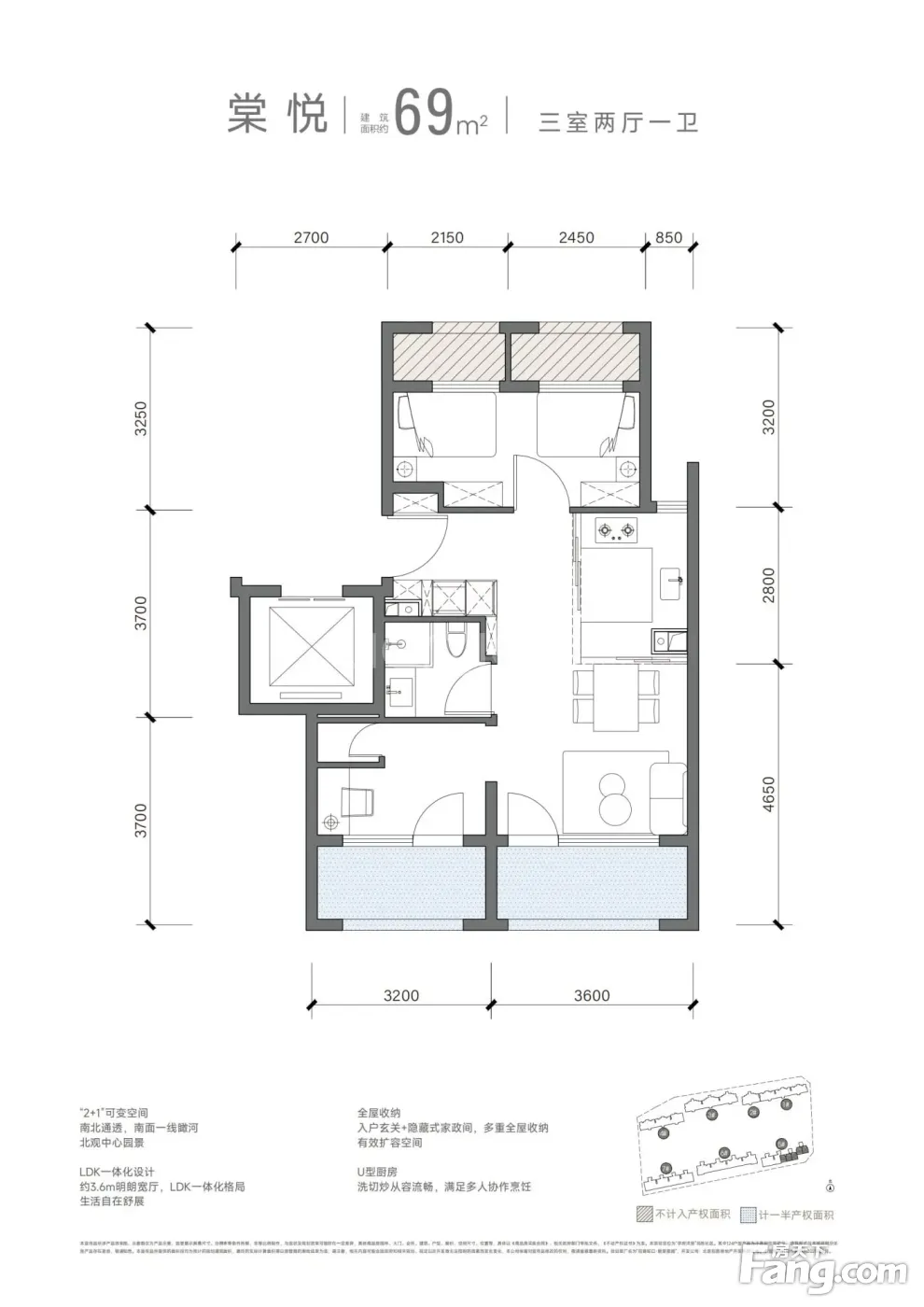
69㎡
建筑面积
买房加房产交流群,省钱不踩雷
3000+人正在热聊
-
单价
58551元/平米
- 挂牌价格解析
-
楼层
底层/6层
- 咨询楼层
-
套内
68㎡
- 咨询套内使用面积
-
朝向
南北
-
装修
简装修
-
年代
2028
-
发布
2026-03-02
-
地铁
距1号线(八通线)通州北苑站约843米
-
深度测评
小区招商蛇口·朝棠揽阅(通州-通州北苑)
-
更多
楼户比、楼层高度、交易历史、抵押信息
房源描述(1)
-
核心卖点问经纪人
朝棠揽阅,位于通州区-通州北苑,招商蛇口再著副中心,为北京青年菁英,匠筑好 房子时代的理想住区。住宅共有907套房源,是一个中型社区。住宅建筑面积8.68万平米,住宅占地面积3.47万平米,小区每户配有1.12个车位。小区住宅容积率为2.50,居住舒适性较好,小区的房源是装修交付的,业主再做下简单的布置,就能入住,省心省力。楼盘开发商是北京招胜房地产开发有 公司。品牌隶属于招商蛇口,全国知名房企,服务有保障。 朝棠揽阅,以高颜 “流金屏”建筑外 落地窗设计, 现代美流。奢隐南法庄园浪漫风情中心大 ,悬浮感下沉式隐奢会所&多元功能空间,松弛勾勒自然光影之中的高定社交场域。
-
业主心态问经纪人
1 一站式购房体验: 购房没有任何额外费用 2 专业:八年房地产相关工作经验,解决客户购房中的各种问题! 3 优势:对北京各个区域新房价格.产品.以及项目情况比较了解! 4 热情:我们有专车接 看房,每日清洗消毒,全程没有费用! 5 服务:客户购房过程中退款以及协助办理,直到网签! 6真诚:根据预算推荐合适房源,告知各个项目优 点! 7承诺:我们会用专业,热情,周到服务,给与客户! 信任始于您拿起电话的那一刻,感谢您的信任,我会让您短时间内选到您满意的房源,欢迎您随时拨打电话咨询。微信同号。
-
小区配套问经纪人
小区地理位置佳,绿化环境优越整洁,居民素质高,物业管理完善,适宜居住
-
服务介绍问经纪人
本人做房产多年,一直本着专业的房产知识,为您服务,我会在短的时间内帮您买好满意的房子,不让您错失任何好房子,更不让您每天为买房的事烦心,欢迎随时拨打我电话。
-
税费分析房贷计算
关于本房的税费信息情况,请电话联系我,我将详细的为您讲解!
-
户型解读问经纪人
房屋拥有相对宽松的尺寸,布局通透,动静分离,设计豪华
周边配套
本月均价 55505元/m²
环比上月 下跌 1.84%
同比去年 持平 持平
猜你喜欢
同小区其它房源
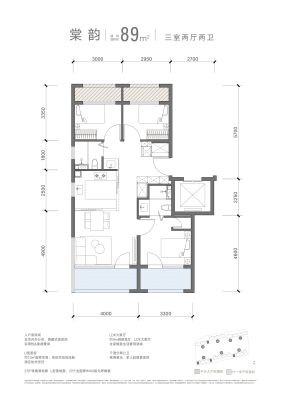
户型齐全,主打三居
招商蛇口·朝棠揽阅户型主要有69平-89平的的三居 、101平-124平的南北通透,全明格局,主卧朝南,三开间朝南的四居 。
*获取完整户型报告,同时会有免费语音讲解服务
-
32004元/㎡
本月挂牌均价
-
0.51%
环比上月
买房加房产交流群,省钱不踩雷
3000+人正在热聊
- 免费咨询
- 专业服务
- 区域解读
- 户型分析


