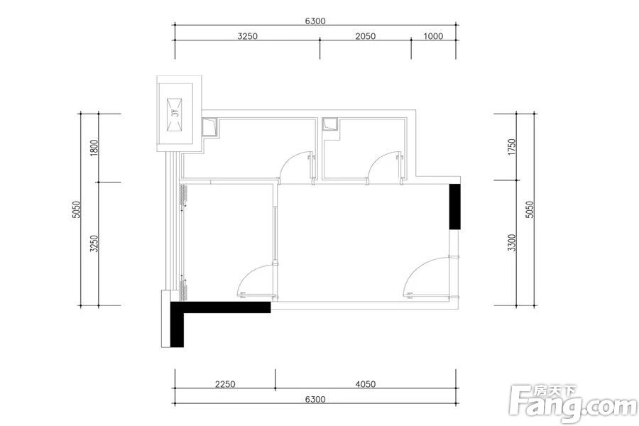
开间
在售I户型 | 建面:40㎡ | 朝向:
- 所属楼盘
约28万元/套算月供
实际价格以售楼处为准,户型图为开发商提供,具体以实际交房标准为准
微信打开
查看完整户型评测户型信息
- 明厨
房屋细节
客厅 42.6㎡ | 面宽6.8m | 进深6.3m
- 空间豪华豪华客厅空间开阔,每一处细节都透露出主人对生活的热爱与追求。
卧室 26.9㎡ | 面宽4.3m | 进深6.3m
空间可容纳
床
1.8m*2m
床头柜X2
0.4m宽
衣柜
0.6m深
- 空间较大宽敞明亮的卧室,让您在繁忙的生活中,也能拥有宁静的私人空间。
- 朝西朝西的卧室拥有优美的观景角度,傍晚时分,落日的美景让您心旷神怡,感受大自然的宁静与美好。
- 有窗卧室拥有宽敞窗户,窗外风景如画,让您在繁忙之余,也能找到一处宁静的角落,享受生活的宁静与美好。
厨房 14.3㎡ | 面宽6.1m | 进深2.6m
- 空间适中适中的厨房面积,既满足日常烹饪需求,又能让厨房保持整洁有序。
- 明厨厨房的窗户设计巧妙,不仅通风采光好,还增添了几分现代感,让烹饪变得更加愉悦。
卫生间 9.2㎡ | 面宽3.5m | 进深2.6m
- 空间适中虽面积不大,但卫生间布局合理,空间适中,轻松享受私密舒适的洗漱时光。
4001891623 转 608609
安全通话隐藏真实号码,致电售楼处了解更多优惠信息
对此楼盘感兴趣的人还浏览了

御园丰锦
15000元/平方米
郫都-犀浦镇用户评分9.4分
在售文旅地产改善优选装修交付地铁沿线

金辉悦府优跃
8500元/平方米
高新西区用户评分0.0分
在售品牌地产
御园丰锦
15000元/平方米
郫都-犀浦镇用户评分9.4分
在售文旅地产改善优选装修交付地铁沿线
查看全部



























