开间
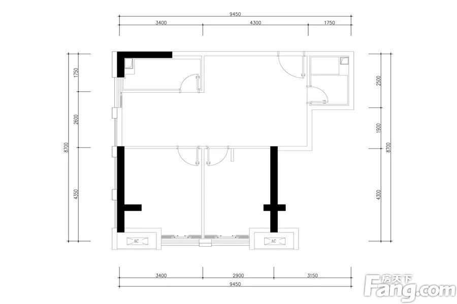
在售商办房源H户型 | 建面:87㎡ | 朝向:
- 所属楼盘
约60.9万元/套算月供
实际价格以售楼处为准,户型图为开发商提供,具体以实际交房标准为准
微信打开
查看完整户型评测户型信息
- 1个明卫
房屋细节
客厅 26.4㎡ | 面宽7m | 进深4.8m
- 空间宽敞宽敞的客厅是家的门面,无论是日常休闲还是节日庆祝,都能在这里找到归属感和幸福感。
卧室A 12.9㎡ | 面宽3m | 进深4.3m
空间可容纳
床
1.8m*2m
床头柜X2
0.4m宽
衣柜
0.6m深
- 空间适中尽管卧室A面积有限,但设计师却巧妙地将每一寸空间都利用起来,打造出一个精致而舒适的休憩环境。
优秀卧室A朝南,光线充足且宜人,通风条件良好,为您的私密空间打造一处自然舒适的休憩之所,无论是午后放松还是夜晚入眠,都能感受到阳光的温暖守护。- 有窗卧室A的窗户,如同一扇通往自然的门,让您随时都能感受到室外的美景与气息。
卧室B 12.8㎡ | 面宽3m | 进深4.3m
空间可容纳
床
1.8m*2m
床头柜X2
0.4m宽
衣柜
0.6m深
- 空间适中卧室B虽小,却设计得精致而实用,每一寸空间都得到了合理的利用,为您打造出一个温馨舒适的休憩空间。
优秀朝南的卧室B光线自然,通风良好,为您的私人空间增添一份自然的舒适与宁静,无论是短暂休息还是夜晚安睡,都能沐浴在温暖的阳光之中。- 有窗卧室B拥有明亮的窗户,让您在享受舒适睡眠的同时,也能感受到自然光的温暖与照耀,让您的生活更加美好。
厨房 6.7㎡ | 面宽2.3m | 进深2.9m
- 空间适中厨房空间宽敞明亮,既满足您的烹饪需求,又能让厨房成为家中的一道亮丽风景。
卫生间 7.3㎡ | 面宽3.7m | 进深2m
- 空间适中卫生间虽小,但空间布局合理,既实用又美观,让您的洗浴体验更加舒适惬意。
- 明卫透过卫生间的窗户,可以感受到自然的气息,让卫浴时光变得更加轻松愉悦。
4001891623 转 608609
安全通话隐藏真实号码,致电售楼处了解更多优惠信息
对此楼盘感兴趣的人还浏览了

御园丰锦
15000元/平方米
郫都-犀浦镇用户评分9.4分
在售文旅地产改善优选装修交付地铁沿线

金辉悦府优跃
8500元/平方米
高新西区用户评分0.0分
在售品牌地产
御园丰锦
15000元/平方米
郫都-犀浦镇用户评分9.4分
在售文旅地产改善优选装修交付地铁沿线
查看全部


优秀
























