开间
在售A户型 | 建面:78㎡ | 朝向:
- 所属楼盘
约54.6万元/套算月供
实际价格以售楼处为准,户型图为开发商提供,具体以实际交房标准为准
微信打开
查看完整户型评测户型信息
- 明厨
房屋细节
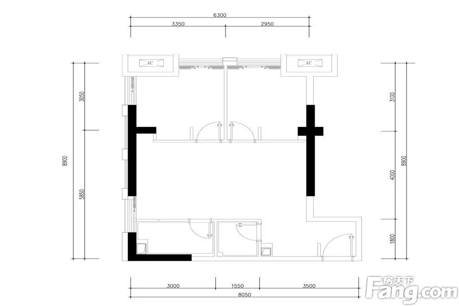
客厅 25.4㎡ | 面宽7.9m | 进深5.2m
- 空间豪华豪华客厅设计巧妙,空间利用合理,营造出一种尊贵而舒适的居住体验。
卧室 10.5㎡ | 面宽3.1m | 进深3.4m
空间可容纳
床
1.8m*2m
床头柜X2
0.4m宽
衣柜
0.6m深
- 空间适中精致小巧的卧室,虽然面积不大,但设计却充满巧思,每一处都透露着舒适与温馨,让您感受到家的温暖。
- 有窗卧室拥有明亮的窗户,让您在享受舒适睡眠的同时,也能感受到自然光的温暖与照耀,让您的生活更加美好。
卧室A 10.1㎡ | 面宽2.9m | 进深3.4m
空间可容纳
床
1.8m*2m
床头柜X2
0.4m宽
衣柜
0.6m深
- 空间适中精致小巧的卧室A,虽然面积不足10平米,但设计巧妙,布局合理,每一寸空间都得到了充分利用,为您打造了一个温馨而舒适的休憩角落
- 有窗卧室A拥有明亮的窗户,让自然光与新鲜空气自由流淌,为您打造一个健康舒适的生活空间。
厨房 6㎡ | 面宽2.7m | 进深2.2m
- 空间适中厨房空间适中,让您的烹饪过程更加得心应手,享受烹饪的乐趣。
- 明厨透亮的窗户为厨房带来明媚阳光,让烹饪环境更加明亮,享受每一刻与家人共度的温馨时光。
4001891623 转 608609
安全通话隐藏真实号码,致电售楼处了解更多优惠信息
对此楼盘感兴趣的人还浏览了

御园丰锦
15000元/平方米
郫都-犀浦镇用户评分9.4分
在售文旅地产改善优选装修交付地铁沿线

金辉悦府优跃
8500元/平方米
高新西区用户评分0.0分
在售品牌地产
御园丰锦
15000元/平方米
郫都-犀浦镇用户评分9.4分
在售文旅地产改善优选装修交付地铁沿线
查看全部



























