开间
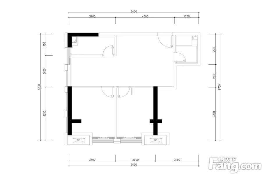
在售H户型 | 建面:87㎡ | 朝向:
- 所属楼盘
约60.9万元/套算月供
实际价格以售楼处为准,户型图为开发商提供,具体以实际交房标准为准
微信打开
查看完整户型评测户型信息
- 1个明卫
房屋细节
客厅 34.7㎡ | 面宽7.9m | 进深5.1m
- 空间豪华豪华客厅设计独特,空间感十足,让人在其中感受到尊贵与舒适的双重享受。
- 朝西朝西的客厅采光不错,尤其是下午时分,夕阳的柔和光线让整个空间显得更加温暖。
- 舒适客厅空间通透,窗户设计别出心裁,让自然光自由流淌,无论是休闲娱乐还是亲朋聚会,都能在此度过美好时光。
卧室A 14.2㎡ | 面宽3.2m | 进深4.5m
空间可容纳
床
1.8m*2m
床头柜X2
0.4m宽
衣柜
0.6m深
- 空间较大卧室A空间开阔,通风良好,让您拥有健康舒适的居住环境。
优秀朝南的卧室A采光优良,通风顺畅,为您的私人领地营造一份自然的宁静与温馨,无论是短暂休息还是深度睡眠,都能沐浴在温暖的阳光之中。- 有窗卧室A窗户设计独特,让室内的光线与室外的景色完美融合,为您营造一个既温馨又舒适的生活氛围。
卧室B 13㎡ | 面宽3m | 进深4.5m
空间可容纳
床
1.8m*2m
床头柜X2
0.4m宽
衣柜
0.6m深
- 空间适中尽管卧室B面积不大,但设计却十分巧妙,每一寸空间都被精心打造,为您打造出一个既温馨又舒适的休憩空间。
优秀朝南的卧室B,阳光倾洒,通风顺畅,为您打造一处自然舒适的私密空间,无论是短暂休憩还是夜晚入眠,都能享受阳光的温柔照耀。- 有窗卧室B的窗户,是连接室内与自然的桥梁,让您在休息时也能感受到大自然的呼吸与节奏。
厨房 6.3㎡ | 面宽2m | 进深3.1m
- 空间适中厨房空间宽敞明亮,既满足您的烹饪需求,又能让厨房成为家中的一道亮丽风景。
卫生间 5.9㎡ | 面宽3.3m | 进深1.8m
- 空间适中虽面积不大,但卫生间布局合理,空间适中,满足您日常清洁和洗漱的需求。
- 明卫有了窗户的卫生间,不仅通风好,还能让居住者感受到自然的美好,让卫浴时光更加惬意。
4001891623 转 608609
安全通话隐藏真实号码,致电售楼处了解更多优惠信息
对此楼盘感兴趣的人还浏览了

御园丰锦
15000元/平方米
郫都-犀浦镇用户评分9.4分
在售文旅地产改善优选装修交付地铁沿线

金辉悦府优跃
8500元/平方米
高新西区用户评分0.0分
在售品牌地产
御园丰锦
15000元/平方米
郫都-犀浦镇用户评分9.4分
在售文旅地产改善优选装修交付地铁沿线
查看全部


优秀
























