开间
在售商办房源D1户型 | 建面:91㎡ | 朝向:
- 所属楼盘
约63.7万元/套算月供
实际价格以售楼处为准,户型图为开发商提供,具体以实际交房标准为准
微信打开
查看完整户型评测户型信息
- 明厨
房屋细节
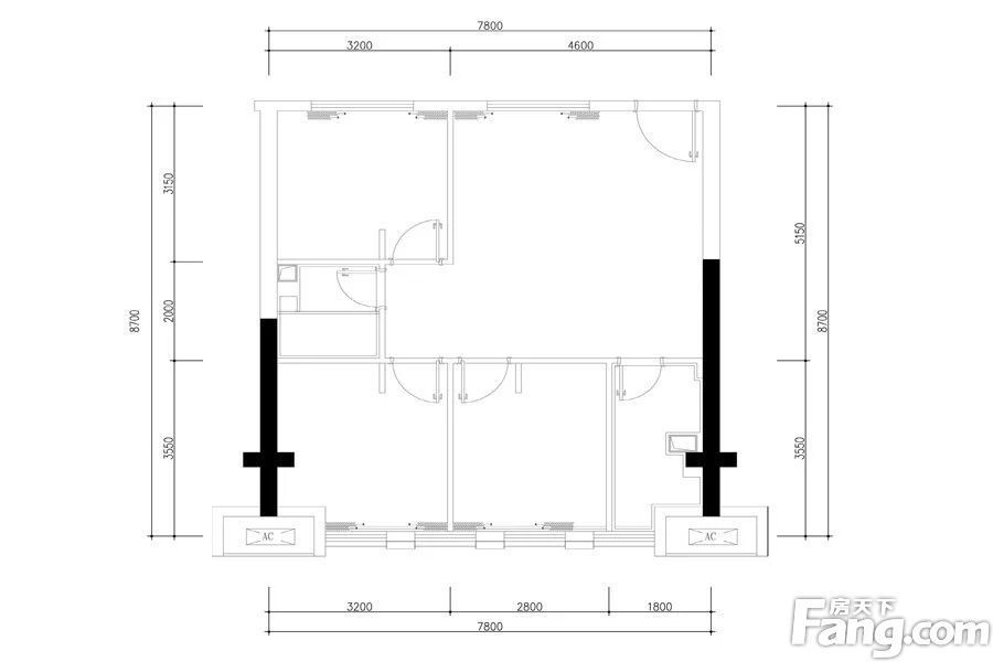
卫 4.1㎡ | 面宽2.6m | 进深1.5m
- 空间适中精致小巧的卫,空间利用高效,让您的洗浴体验更加轻松愉快。
客厅 44.7㎡ | 面宽7.6m | 进深6.5m
- 空间豪华宽敞而豪华的客厅,让人在享受舒适生活的同时,也能感受到尊贵与荣耀。
卧室 13.8㎡ | 面宽3.8m | 进深3.6m
空间可容纳
床
1.8m*2m
床头柜X2
0.4m宽
衣柜
0.6m深
- 空间适中尽管卧室面积不大,但设计却十分巧妙,每一寸空间都被精心打造,为您打造出一个既温馨又舒适的休憩空间。
- 有窗卧室窗户明亮通透,将室外的清新空气与阳光引入室内,让您在此享受宁静与舒适的时光。
卧室A 18.3㎡ | 面宽3.9m | 进深4.7m
空间可容纳
床
1.8m*2m
床头柜X2
0.4m宽
衣柜
0.6m深
- 空间较大这间大于10平米的卧室A,空间宽敞,布局合理,让您在享受舒适生活的同时,也能感受到家的温馨与安逸。
优秀朝南的卧室A光线明亮,通风效果卓越,为您的私人领地带来一份自然的宁静与安逸,无论是短暂休息还是深度睡眠,都能沐浴在温暖的阳光之中。- 有窗卧室A窗户敞亮,将外界的美景引入室内,让您每日清晨都能沐浴在自然的阳光下,感受生活的美好。
卧室B 15.8㎡ | 面宽3.4m | 进深4.7m
空间可容纳
床
1.8m*2m
床头柜X2
0.4m宽
衣柜
0.6m深
- 空间较大宽敞的卧室B,让您的居住体验更加舒适、自在。
优秀卧室B朝南,光线通透且柔和,通风条件优越,为您的私密空间增添一份自然的舒适与安逸,无论是午后放松还是夜晚安睡,都能感受到阳光的温暖守护。- 有窗卧室B的窗户,如同一扇通往自然的门,让您随时都能感受到室外的美景与气息。
厨房 12.3㎡ | 面宽3m | 进深4.7m
- 空间较大厨房宽敞明亮,多人同时烹饪也能保持舒适感,家电摆放方便,提升烹饪效率。
- 明厨厨房设计注重通风采光,窗户设计合理,让烹饪时光更加明亮舒适,增添家的幸福感。
4001891623 转 608609
安全通话隐藏真实号码,致电售楼处了解更多优惠信息
对此楼盘感兴趣的人还浏览了

北京建工花汀集
7100元/平方米
郫都-郫都区城区用户评分8.24分
在售品牌地产低密居所洋房

锦城苑
9765元/平方米
成华用户评分9.35分
在售地铁沿线

青城365南院二期
8000元/平方米
都江堰-青城山用户评分8.65分
在售文旅地产低密居所洋房
查看全部


优秀
























