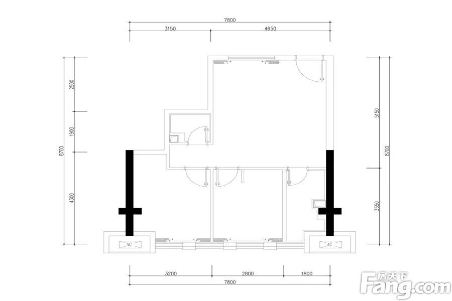
开间
在售商办房源G户型 | 建面:76㎡ | 朝向:
- 所属楼盘
约53.2万元/套算月供
实际价格以售楼处为准,户型图为开发商提供,具体以实际交房标准为准
微信打开
查看完整户型评测户型信息
- 1个明卫
房屋细节
客厅 12.2㎡ | 面宽4.5m | 进深2.7m
- 紧凑实用尽管客厅面积不宽敞,但设计上的小巧精致令人印象深刻。紧凑而实用的布局充分考虑了空间利用率。这个小空间散发着家的温馨与舒适。
- 舒适客厅明亮宽敞,窗户设计巧妙,让自然光与室内空气完美交融,无论是休息放松还是观赏窗外景色,都能在此找到心灵的归宿。
卧室A 16㎡ | 面宽3.4m | 进深5.2m
空间可容纳
床
1.8m*2m
床头柜X2
0.4m宽
衣柜
0.6m深
- 空间较大宽敞明亮的卧室A,让您在繁忙的生活中,也能拥有宁静的私人空间。
优秀卧室A朝南,光线柔和而通透,通风顺畅,为您的私密空间增添一份自然的舒适与宁静,无论是午后小憩还是夜晚安睡,都能享受到阳光的温馨照耀。- 有窗卧室A窗户设计独特,让室内的光线与室外的景色完美融合,为您营造一个既温馨又舒适的生活氛围。
卧室B 14.1㎡ | 面宽3.3m | 进深4.3m
空间可容纳
床
1.8m*2m
床头柜X2
0.4m宽
衣柜
0.6m深
- 空间较大宽敞的卧室B,是您放松身心、恢复精力的好去处。
优秀朝南设计的卧室B,光线通透,通风舒畅,为您的私人领地增添一份自然的舒适与惬意,无论是午后放松还是夜晚入眠,都能享受到阳光的温暖陪伴。- 有窗卧室B窗户设计独特,让室内的光线与室外的景色完美融合,为您营造一个既温馨又舒适的生活氛围。
厨房 4.3㎡ | 面宽2.5m | 进深1.7m
- 空间适中精心设计的厨房空间,既实用又美观,让您的烹饪之旅更加顺畅愉快。
卫生间 8.3㎡ | 面宽2.1m | 进深4.3m
- 空间较大宽敞舒适的卫生间,干湿分离设计让洗浴体验更加完美,提升生活品质。
- 明卫卫生间设有窗户,通风效果更佳,有效减少潮湿,打造健康舒适的卫浴环境。
4001891623 转 608609
安全通话隐藏真实号码,致电售楼处了解更多优惠信息
对此楼盘感兴趣的人还浏览了

瑞和上院
7000元/平方米
郫都-郫都区城区用户评分8.63分
在售宜居生态地产

人居金云府
7800元/平方米
金堂用户评分8.87分
在售文旅地产改善优选装修交付

蜀都万科·锦上扬华
17880元/平方米
郫都-犀浦镇用户评分8.98分
在售装修交付
查看全部


优秀
























