品质小区 好楼层 户型好 车位 储藏室
-
54万
总价
-
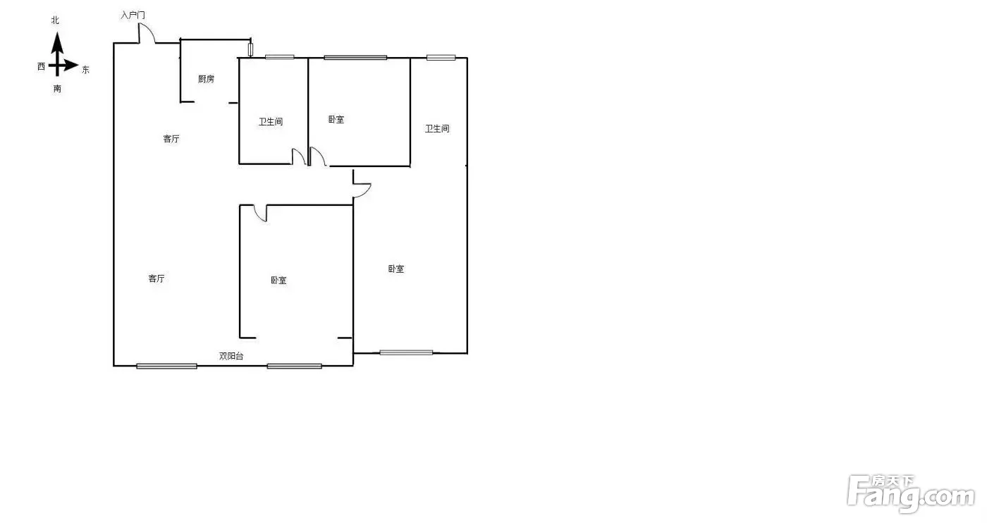
3室2厅
户型
-
127.29㎡
建筑面积
-
单价
4243元/平米
- 挂牌价格解析
-
楼层
中楼层/26层
- 咨询楼层
-
套内
暂无数据
- 咨询套内使用面积
-
朝向
南北
-
装修
其他
-
供暖
暂无数据
-
发布
2025-09-05
-
深度测评
小区和園(寒亭-杨家埠)
-
更多
楼户比、楼层高度、交易历史、抵押信息
房源描述(2)
-
核心卖点问经纪人
相信为您推荐的这套房子您一定会满意,赶快行动吧,先到先得! 房屋年代∶2024年,房屋面积∶127.3平方米,朝向∶南北通透 1. 小区配备良好物业管理,让你享受宾至如归的服务; 2. 小区人文素质高,是您的居家的品质选择; 3. 小区环境安静舒适,让您拥有高品质的生活环境; 4. 小区绿化高,绿树成荫鸟语花香让您随时呼吸到新鲜空气。
-
业主心态问经纪人
房东置换,诚心出售,价格可以再谈,欢迎看房,随时恭候。
-
小区配套问经纪人
位置:小区地理位置佳,绿化率高,居民素质高 配套:有健身器材,小型篮球场,可供小区居民使用 车位:停车位充足,建有地上停车场和地下车库 保安:小区内24保安巡逻
-
服务介绍问经纪人
本人从事房地产多年,公司有大量好房源,欢迎进入我的店铺查看,欢迎随时电话咨询,相信我的专业,为您置业安家保驾护航。
-
核心卖点问经纪人
出来一批顶账的房子,全是好楼层,立省10万内部工抵 另有优惠 随时联 另有大平层优惠!!! 小区内高层多层 分布错落合理,楼间距大,采光好!小 区绿化好,负氧离子多,不管是年轻人还是老人养老养生宜居,小区物业全封闭管理,24h物业管家。地上地下车 位,人车分流
-
业主心态问经纪人
顶账房一品好楼层 期待有缘人入住,也希望有缘人能在这里家庭事业双丰收。
-
小区配套问经纪人
位置:小区地理位置,绿化,居民素质高 配套:有健身器材,小型篮球场,可供小区居民使用 车位:停车位充足,建有地上停车场和地下车库 保安:小区内24保安巡逻
-
服务介绍问经纪人
足不出户,带您了解周边楼市信息! 本人从事房产行业多年,了解市场房源具体信息,深知买房的艰辛和不易,会为您匹配合适的房源,为您买上满意的房子 欢迎各位随时咨询,一定会尽心尽力,全心全意为您服务。
-
税费分析房贷计算
关于税费方面会严格按照国家标准,及相关政策规定收取,保证每一位客户的合法利益不受侵犯,如有疑问可随时咨询! 新房不收中介费!!! 新房不收中介费!!! 新房不收中介费!!!
-
户型解读问经纪人
小区总体户型都是比较不错的!光线非常好,南北通透,卧室朝阳,全明户型,抽空可以过来实地看看。
周边配套
交通综合评分
查看全部超过潍坊0.0%的小区
-
地铁公交
10.0
本月均价 6460元/m²
环比上月 上涨 6.45%
同比去年 上涨 39.22%
猜你喜欢
同小区其它房源
-
6532元/㎡
本月挂牌均价
-
持平
环比上月
- 免费咨询
- 专业服务
- 区域解读
- 户型分析



