新华路健康街近金色九州高层10楼140平3室原房55万一口价
-
55万
总价
-
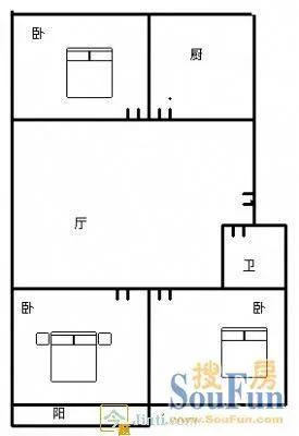
3室2厅2卫
户型
-
140㎡
建筑面积
-
单价
3929元/平米
- 挂牌价格解析
-
楼层
中层/26层
- 咨询楼层
-
套内
暂无数据
- 咨询套内使用面积
-
楼型
板楼
-
朝向
南
-
装修
简装修
-
年代
2020
-
发布
2026-01-26
-
深度测评
小区金色九州(奎文-九龙山)
-
更多
楼户比、楼层高度、交易历史、抵押信息
房源描述(1)
周边配套
地址:健康东街与新华路交叉口往西50米路南
交通综合评分
查看全部5.2
“一般”
超过潍坊60.4%的小区
-
地铁公交
10.0
-
城际交通
4.0
本月均价 5839元/m²
环比上月 上涨 0.64%
同比去年 下跌 8.55%
猜你喜欢
同小区其它房源
户型齐全,主打户型方正,明卫,明厨,客厅朝南,双阳台,主卧朝南三居
金色九州户型主要有140平-141平的户型方正,明卫,明厨,客厅朝南,双阳台,主卧朝南的三居 、123平-133平的户型方正,明厨,客厅朝南,双阳台的二居 。
*获取完整户型报告,同时会有免费语音讲解服务
-
7727元/㎡
本月挂牌均价
-
持平
环比上月
- 免费咨询
- 专业服务
- 区域解读
- 户型分析
免责声明:房源信息由网站用户提供,其真实性、合法性由信息提供者负责,最终以政府部门登记备案为准。本网站不声明或保证内容之正确性和可靠性,购买该房屋时,请谨慎核查。入学情况仅凭历史经验总结,在此不承诺升学事宜。请您在签订合同之前,切勿支付任何形式的费用,以免上当受骗。


