中海世家叠加复式 带2个车位 送露台 新房未住 有钥匙
-
255万
总价
-
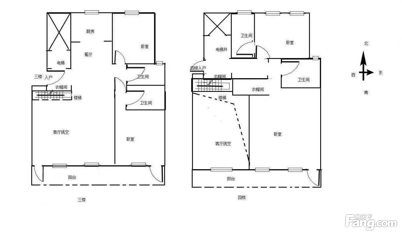
4室2厅4卫
户型
-
240㎡
建筑面积
-
单价
10625元/平米
- 挂牌价格解析
-
楼层
6层
- 咨询楼层
-
套内
暂无数据
- 咨询套内使用面积
-
楼型
独栋
-
朝向
南
-
装修
毛坯
-
年代
2024
-
发布
2026-01-25
-
深度测评
小区中海世家别墅(坊子-坊子新区)
-
更多
楼户比、楼层高度、交易历史、抵押信息
房源描述(1)
-
核心卖点问经纪人
推荐理由 1、 地理位置优越 2、 公交地铁 方便。出行方便,上下班方便 3、 购物方便,节省您的宝贵时间 4、 小区绿化率高。环境优美。宁静和谐,好环境总会给人带来好心情 5、 房干净整洁,温馨舒适,窗明几净,就等着您的拎包入住 6、 宽敞明亮,布局大方,采光非常好
-
业主心态问经纪人
房东置换,诚心出售,欢迎看房,随时恭候您的电话。
-
小区配套问经纪人
小区地理位置佳,绿化率高,环境整洁,居民素质高。 .
-
服务介绍问经纪人
本人做房产多年,本着专业的房产知识,为您服务,我会在短的时间内帮您买好满意的房子,不让您错失任何好房子,更不让您每天为买房的事烦心,欢迎随时联系!
-
税费分析房贷计算
关于本房税费分析详情,请电话联系我,我将提供详细的税费情况。
周边配套
地址:渤海路(原潍县中路)与凤凰街交汇处东200米路北
-
5405元/㎡
本月挂牌均价
-
持平
环比上月
- 免费咨询
- 专业服务
- 区域解读
- 户型分析
免责声明:房源信息由网站用户提供,其真实性、合法性由信息提供者负责,最终以政府部门登记备案为准。本网站不声明或保证内容之正确性和可靠性,购买该房屋时,请谨慎核查。入学情况仅凭历史经验总结,在此不承诺升学事宜。请您在签订合同之前,切勿支付任何形式的费用,以免上当受骗。


