正南 辰隆天玺城 4室2厅
-
135万
总价
-
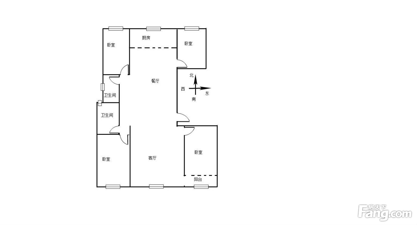
4室2厅2卫
户型
-
155㎡
建筑面积
-
单价
8710元/平米
- 挂牌价格解析
-
楼层
高层/18层
- 咨询楼层
-
套内
暂无数据
- 咨询套内使用面积
-
楼型
板楼
-
朝向
南
-
装修
毛坯
-
年代
2021
-
发布
2026-01-21
-
地铁
暂无数据
-
深度测评
小区辰隆天玺城(高新-市府东南区域)
-
更多
楼户比、楼层高度、交易历史、抵押信息
房源描述(1)
-
核心卖点问经纪人
相信为您推荐的这套房子您一定会满意,赶快行动吧,先到先得! 房屋年代∶2021年,房屋面积∶155平方米,朝向∶正南 1. 小区配备良好物业管理,让你享受宾至如归的服务; 2. 小区人文素质高,是您的居家的品质选择; 3. 小区环境安静舒适,让您拥有高品质的生活环境; 4. 小区绿化高,绿树成荫鸟语花香让您随时呼吸到新鲜空气。
-
业主心态问经纪人
房东置换,诚心出售,欢迎看房,随时恭候您的电话。 .
-
小区配套问经纪人
小区地理位置佳,绿化率高,环境整洁,居民素质高。 .
-
服务介绍问经纪人
公司有大量好房源,欢迎进入我的店铺查看,随时电话咨询,相信我的专业,为您置业安家保驾护航。
-
税费分析房贷计算
关于本房税费分析详情,请电话联系我,我将提供详细的税费情况。 .
-
户型解读问经纪人
本房源采光好,交通便利户型方正是园区里的好户型。 .
周边配套
本月均价 8308元/m²
环比上月 下跌 1.69%
同比去年 下跌 16.46%
猜你喜欢
同小区其它房源
户型齐全,主打卧室朝南,明厨明卫三居
辰隆天玺城户型主要有98平-145平的卧室朝南,明厨明卫的三居 、138平-169平的客厅朝南,卧室朝南的四居 、90平-90平的卧室朝南,干湿分离的二居 。
*获取完整户型报告,同时会有免费语音讲解服务
-
8265元/㎡
本月挂牌均价
-
持平
环比上月
- 免费咨询
- 专业服务
- 区域解读
- 户型分析


