顶账房220万可议!爱悦城别墅下叠带负一负二 上叠报200万
-
238万
总价
-
4室2厅1卫
户型
-
228㎡
建筑面积
-
单价
10439元/平米
- 挂牌价格解析
-
楼层
底层/3层
- 咨询楼层
-
套内
暂无数据
- 咨询套内使用面积
-
朝向
南
-
装修
毛坯
-
年代
2021
-
发布
2026-01-16
-
深度测评
小区中房爱悦城(寒亭-杨家埠)
-
更多
楼户比、楼层高度、交易历史、抵押信息
房源描述(1)
-
核心卖点问经纪人
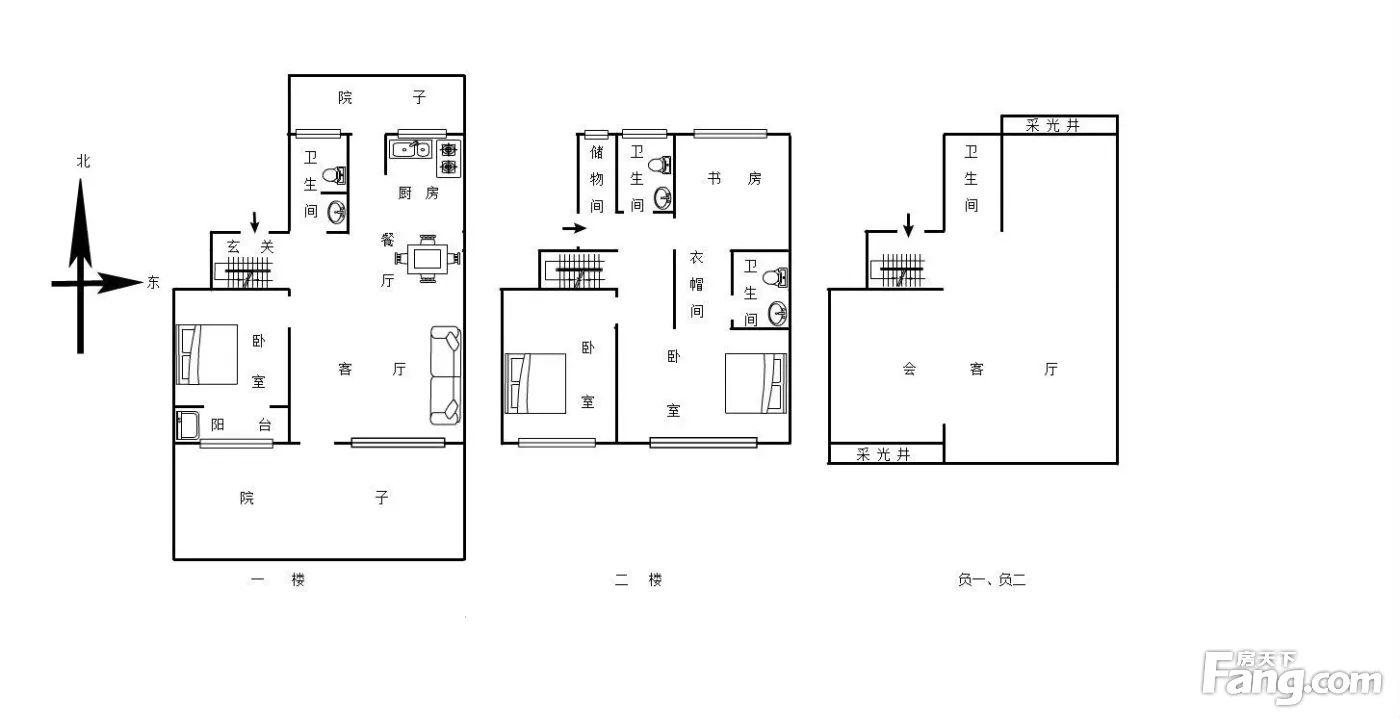
上叠报价200万,下叠报价220万,顶账房多套房源随时看,房主包更名
-
业主心态问经纪人
业主诚意出售,对自己的房子很爱惜也很不舍,所以希望找到诚心诚意的客户,想看房子可以给我打电话!
-
小区配套问经纪人
位置:小区地理位置,绿化,居民素质高 配套:有健身器材,小型篮球场,可供小区居民使用 车位:停车位充足,建有地上停车场和地下车库 保安:小区内24保安巡逻
-
服务介绍问经纪人
足不出户,带您了解周边楼市信息! 本人从事房产行业多年,了解市场房源具体信息,深知买房的艰辛和不易,会为您匹配合适的房源,为您买上满意的房子 欢迎各位随时咨询,一定会尽心尽力,全心全意为您服务。
-
税费分析房贷计算
关于税费方面会严格按照国家标准,及相关政策规定收取,保证每一位客户的合法利益不受侵犯,如有疑问可随时咨询! 新房不收中介费!!! 新房不收中介费!!! 新房不收中介费!!!
-
户型解读问经纪人
小区总体户型都是比较不错的!光线非常好,南北通透,卧室朝阳,全明户型,抽空可以过来实地看看。
周边配套
本月均价 5964元/m²
环比上月 下跌 3.31%
同比去年 下跌 14.04%
户型齐全,主打南北通透,客厅朝南,卧室朝南,入户花园三居
中房爱悦城户型主要有104平-122平的南北通透,客厅朝南,卧室朝南,入户花园的三居 、135平-161平的客厅朝南,卧室朝南的四居 。
*获取完整户型报告,同时会有免费语音讲解服务
-
6532元/㎡
本月挂牌均价
-
持平
环比上月
- 免费咨询
- 专业服务
- 区域解读
- 户型分析


