大有公馆近名仁府一楼带院送负一会客厅更名新房手续有钥匙
-
193.8万
总价
-
3室2厅2卫
户型
-
137㎡
建筑面积
-
单价
14146元/平米
- 挂牌价格解析
-
楼层
底层/6层
- 咨询楼层
-
套内
暂无数据
- 咨询套内使用面积
-
楼型
板楼
-
朝向
南北
-
装修
毛坯
-
年代
2019
-
发布
2025-12-29
-
地铁
暂无数据
-
深度测评
小区金庆名仁府(奎文-九龙山)
-
更多
楼户比、楼层高度、交易历史、抵押信息
房源描述(1)
-
核心卖点问经纪人
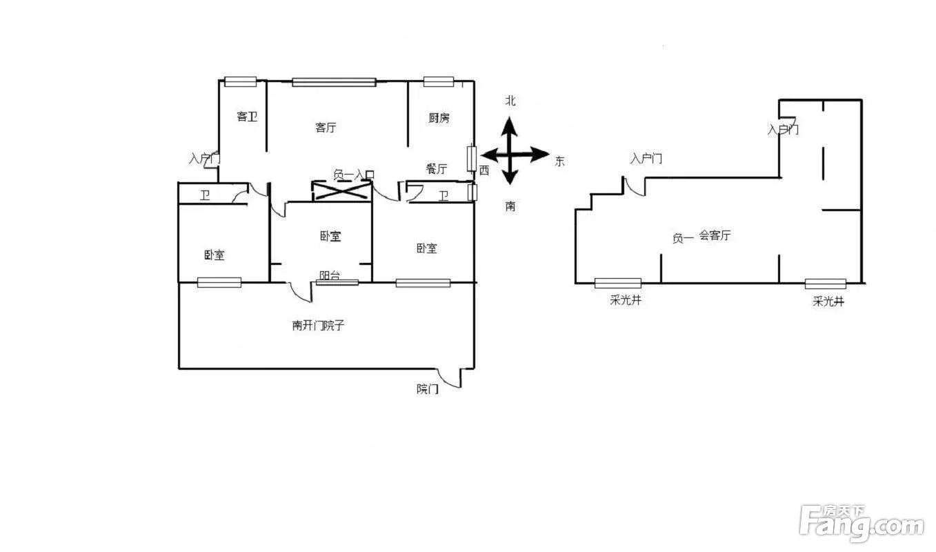
房源介绍: 【户型】:3是2厅2卫,南北通透, 【税费】:更名, 一套可以更名的房子 【附属物】:带负一层会客厅,带大院子 【教育】:樱桃园 ,广文中学。 【商业】:樱前街佳乐家,泰华
-
业主心态问经纪人
房东置换,诚心出售,欢迎看房,随时恭候您的电话。 .
-
小区配套问经纪人
小区地理位置佳,绿化率高,环境整洁,居民素质高。 .
-
服务介绍问经纪人
我是恒信房产杨永国,公司系统有庞大的房源信息,总有一款适合您,我珍视每一份嘱托,不发布虚 、不虚报价格、不吃差价,一心一意只为圆您家的梦想!.............
-
税费分析房贷计算
关于本房税费分析详情,请电话联系我,我将提供详细的税费情况。 .
周边配套
地址:樱前街与鸢飞路交叉口南200米路东
本月均价 14192元/m²
环比上月 下跌 0.6%
同比去年 上涨 10.46%
猜你喜欢
同小区其它房源
- 免费咨询
- 专业服务
- 区域解读
- 户型分析
免责声明:房源信息由网站用户提供,其真实性、合法性由信息提供者负责,最终以政府部门登记备案为准。本网站不声明或保证内容之正确性和可靠性,购买该房屋时,请谨慎核查。入学情况仅凭历史经验总结,在此不承诺升学事宜。请您在签订合同之前,切勿支付任何形式的费用,以免上当受骗。

