真实弘阳时光九樾 北苑实验 70出头 双阳台 电梯房 双卫
-
73.8万
总价
-
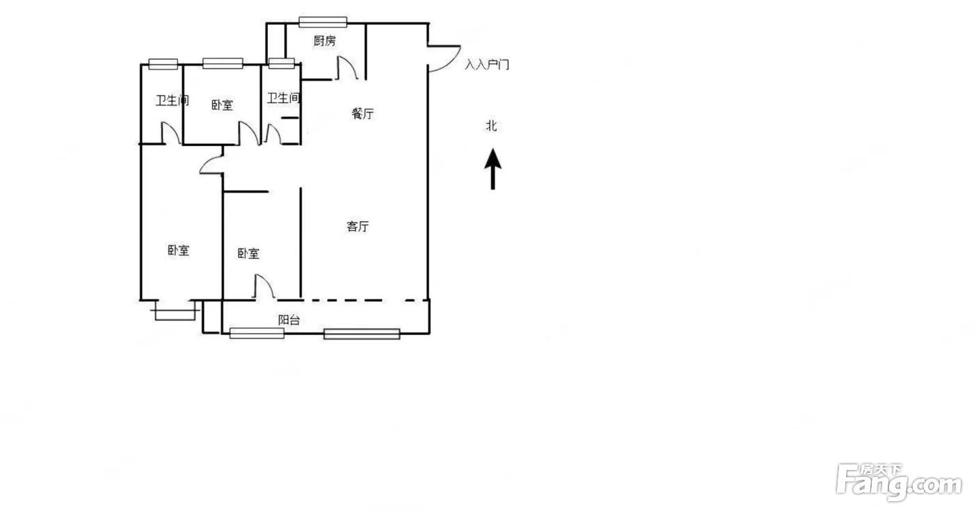
3室2厅2卫
户型
-
135㎡
建筑面积
-
单价
5467元/平米
- 挂牌价格解析
-
楼层
高层/23层
- 咨询楼层
-
套内
暂无数据
- 咨询套内使用面积
-
楼型
板楼
-
朝向
南北
-
装修
毛坯
-
年代
2024
-
发布
2025-11-19
-
深度测评
小区弘阳时光九樾(奎文-则尔庄)
-
更多
楼户比、楼层高度、交易历史、抵押信息
房源描述(1)
周边配套
地址:玉清街与鸢飞路交汇处西行200米
交通综合评分
查看全部6.7
“较好”
超过潍坊0.0%的小区
-
地铁公交
10.0
-
驾车出行
9.0
本月均价 6811元/m²
环比上月 下跌 2.61%
同比去年 上涨 4.25%
猜你喜欢
同小区其它房源
-
5549元/㎡
本月挂牌均价
-
持平
环比上月
- 免费咨询
- 专业服务
- 区域解读
- 户型分析
免责声明:房源信息由网站用户提供,其真实性、合法性由信息提供者负责,最终以政府部门登记备案为准。本网站不声明或保证内容之正确性和可靠性,购买该房屋时,请谨慎核查。入学情况仅凭历史经验总结,在此不承诺升学事宜。请您在签订合同之前,切勿支付任何形式的费用,以免上当受骗。


