恒信学府精装1楼带院前开门精装大H拎包入住带车库大三室
-
80万
总价
-
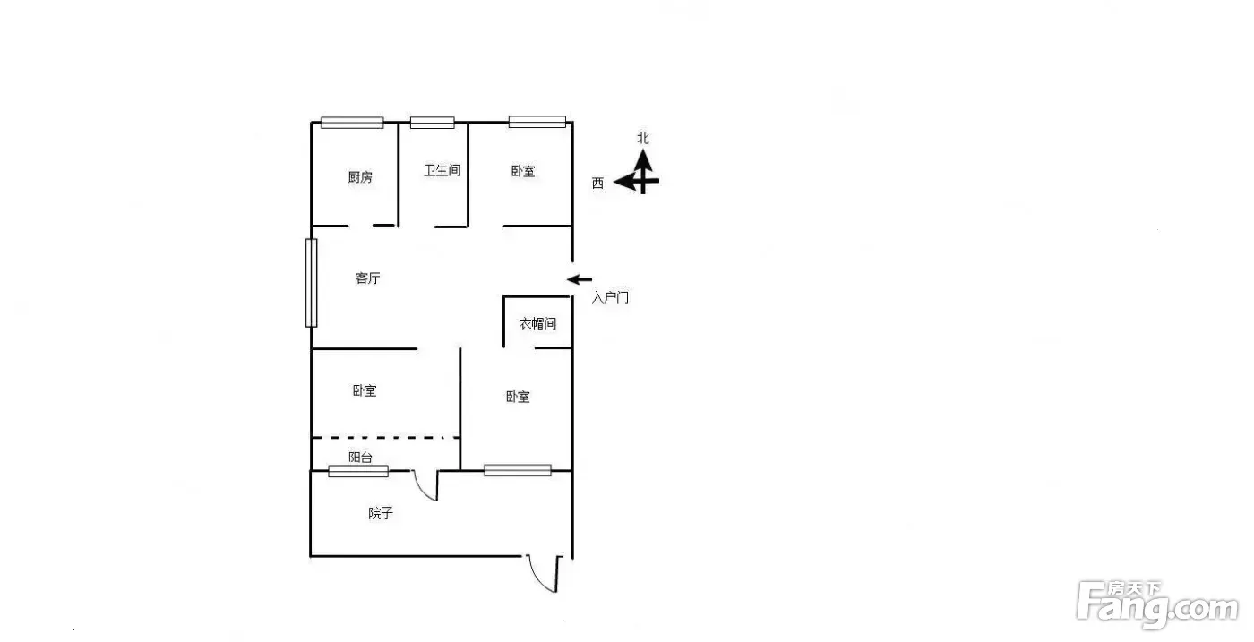
3室2厅2卫
户型
-
104㎡
建筑面积
-
单价
7692元/平米
- 挂牌价格解析
-
楼层
低层/11层
- 咨询楼层
-
套内
暂无数据
- 咨询套内使用面积
-
楼型
板楼
-
朝向
南北
-
装修
精装修
-
年代
2019
-
发布
2025-10-02
-
深度测评
小区恒信学府(寒亭-金三角)
-
更多
楼户比、楼层高度、交易历史、抵押信息
房源描述(1)
-
核心卖点问经纪人
这个房子属于多层电梯洋房,一楼带大院子,客厅朝阳两卧朝阳两卧北向,。全年采光没有任何问题,房子是精装修可以直接拎包入住 出行方便,紧邻交通要道北海路和渤海路,出差也比较方便。 购物方便,小区旁边就有夜市,南边就是玄家朱茂市场,购物方便 房东诚心出售,看房方便;宽敞明亮,居住舒服;小区周边交通便利,生活配套设施齐全,生活 便利
-
业主心态问经纪人
1,房子产权清晰,非常配合,看房很方便。 2,房主人很好,很善良,诚意出售房产。 3,房产成交后,房主积极配合办理、过户等相关手续。
-
小区配套问经纪人
小区地理位置佳,绿化率高,环境整洁,居民素质高。 交通出行: 乘坐4路、K5路公交车到通亭街亚星路路口站下车南行东转1000米即到 交通出行: 乘坐4路、K5路公交车到通亭街亚星路路口站下车南行东转1000米即到 . 交通出行: 乘坐4路、K5路公交车到通亭街亚星路路口站下车南行东转1000米即到 . 交通出行: 乘坐4路、K5路公交车到通亭街亚星路路口站下车南行东转1000米即到 . 交通出行: 乘坐4路、K5路公交车到通亭街亚星路路口站下车南行东转1000米即到 . 交通出行:
-
服务介绍问经纪人
1、我是恒信旗舰店的王法龙,很高兴为您服务。希望在很短的时间内,通过我们的沟通,以及我的专业、细致、有效的服务,用较短的时间给您匹配适合您的房子。 2、买房对于任何一个家庭来说都是大事,过程的任何疑
-
税费分析房贷计算
关于本房税费分析详情,请电话联系我,我将提供详细的税费情况。 .
-
交通出行问经纪人
乘坐4路、K5路公交车到通亭街亚星路路口站下车南行东转1000米即到 .
周边配套
交通综合评分
查看全部超过潍坊72.4%的小区
-
地铁公交
10.0
-
驾车出行
9.0
本月均价 7449元/m²
环比上月 上涨 0.05%
同比去年 下跌 3%
猜你喜欢
同小区其它房源
户型齐全,主打南北通透,全明格局,客厅朝南三居
恒信学府户型主要有101平-130平的南北通透,全明格局,客厅朝南的三居 、140平-169平的南北通透,全明格局,户型方正的四居 、231平-231平的户型方正,客厅朝南的五居 。
*获取完整户型报告,同时会有免费语音讲解服务
-
5283元/㎡
本月挂牌均价
-
持平
环比上月
- 免费咨询
- 专业服务
- 区域解读
- 户型分析

