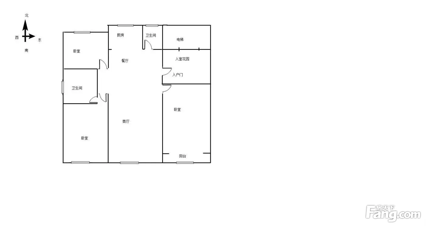
金三角 明德大H户型 南北通透 恒信华府 3室2厅 精装修
-
75.8万
总价
-
3室2厅2卫
户型
-
119.4㎡
建筑面积
-
单价
6348元/平米
- 挂牌价格解析
-
楼层
高层/18层
- 咨询楼层
-
套内
暂无数据
- 咨询套内使用面积
-
楼型
板楼
-
朝向
南北
-
装修
精装修
-
年代
2016
-
发布
2025-04-17
-
深度测评
小区恒信华府(寒亭-金三角)
-
更多
楼户比、楼层高度、交易历史、抵押信息
房源描述(1)
-
核心卖点问经纪人
相信为您推荐的这套房子您一定会满意,赶快行动吧,先到先得! 房屋年代∶2016年,房屋面积∶119.4平方米,朝向∶南北通透 1. 小区配备良好物业管理,让你享受宾至如归的服务; 2. 小区人文素质高,是您的居家的品质选择; 3. 小区环境安静舒适,让您拥有高品质的生活环境; 4. 小区绿化高,绿树成荫鸟语花香让您随时呼吸到新鲜空气。
-
业主心态问经纪人
房东置换,诚心出售,价格可以再谈,欢迎看房,随时恭候。
-
小区配套问经纪人
位置:小区地理位置佳,绿化率高,居民素质高 配套:有健身器材,小型篮球场,可供小区居民使用 车位:停车位充足,建有地上停车场和地下车库 保安:小区内24保安巡逻
-
服务介绍问经纪人
本人从事房地产多年,公司有大量好房源,欢迎进入我的店铺查看,欢迎随时电话咨询,相信我的专业,为您置业安家保驾护航。
周边配套
交通综合评分
查看全部超过潍坊73.3%的小区
-
地铁公交
10.0
-
驾车出行
9.0
本月均价 6128元/m²
环比上月 下跌 0.54%
同比去年 下跌 7.52%
猜你喜欢
同小区其它房源
户型齐全,主打明厨,明卫,客厅朝南,主卧朝南三居
恒信华府户型主要有84平-125平的明厨,明卫,客厅朝南,主卧朝南的三居 、86平-92平的户型方正,明厨的二居 、142平-142平的南北通透,卧室朝南的四居 。
*获取完整户型报告,同时会有免费语音讲解服务
-
5283元/㎡
本月挂牌均价
-
持平
环比上月
- 免费咨询
- 专业服务
- 区域解读
- 户型分析


