联洋·浦东虹桥花园-第九城市一期·5室·2厅
-
2700万
总价
-
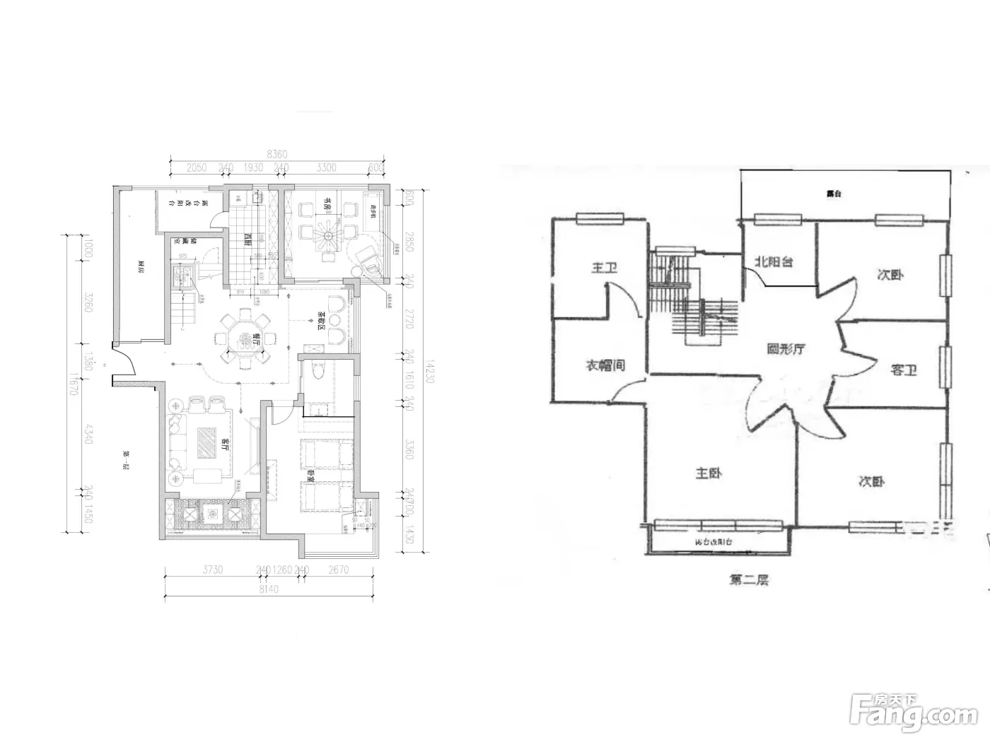
5室2厅3卫
户型
-
258.26㎡
建筑面积
买房加房产交流群,省钱不踩雷
3000+人正在热聊
加入群聊
-
单价
104546元/平米
- 挂牌价格解析
-
楼层
高楼层/22层
- 咨询楼层
-
套内
暂无数据
- 咨询套内使用面积
-
楼型
板楼
-
朝向
南
-
装修
精装
-
年代
2004
-
发布
2023-04-03
-
地铁
距9号线芳甸路站约637米
-
咨询总首付
首付约808.6万
首付税费及佣金情况 -
深度测评
小区第九城市(浦东-联洋)
-
更多
楼户比、楼层高度、交易历史、抵押信息
周边配套
地址:锦绣路300弄
交通综合评分
查看全部4.0
“一般”
超过上海89.1%的小区
-
地铁公交
10.0
本月均价 100568元/m²
环比上月 持平
同比去年 下跌 8.19%
猜你喜欢
同小区其它房源
-
96871元/㎡
本月挂牌均价
-
持平
环比上月
买房加房产交流群,省钱不踩雷
3000+人正在热聊
加入群聊
免责声明:房源信息由网站用户提供,其真实性、合法性由信息提供者负责,最终以政府部门登记备案为准。本网站不声明或保证内容之正确性和可靠性,购买该房屋时,请谨慎核查。入学情况仅凭历史经验总结,在此不承诺升学事宜。请您在签订合同之前,切勿支付任何形式的费用,以免上当受骗。



