万达边 带阁楼80平左右 精装修 全屋落地窗 视野无遮挡
-
289万
总价
-
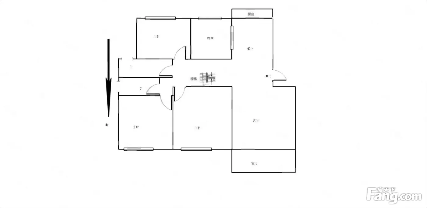
3室2厅2卫
户型
-
132㎡
建筑面积
-
单价
21894元/平米
- 挂牌价格解析
-
楼层
高层/9层
- 咨询楼层
-
套内
116.16㎡
- 咨询套内使用面积
-
楼型
板楼
-
朝向
南北
-
装修
精装修
-
年代
2012
-
发布
2024-11-02
-
咨询总首付
首付约107.3万
首付税费及佣金情况 -
深度测评
小区赞成红树林(金山-金山新城)
-
更多
楼户比、楼层高度、交易历史、抵押信息
-
核验码
202308746700
房源描述(1)
-
核心卖点问经纪人
卖点:新城区低价房源,送阁楼次新小区商圈:近万达商圈,吃喝玩乐购一体,小区门口就是东尚市,小区门口就是一条街,近红星美凯龙,汇龙湖公园:金山中交通:小区东就有公交站台,多路交通可以到达:虹桥高铁站,金山卫站,石化汽车站,上海市区站,金山医院,金山万达,百联等等,交通方便同类型房源:详情咨询
-
业主心态问经纪人
为什么要买房:对于刚需客户,买房是必须的,就看你选择哪里,手上有多少资金,买多大的房子;对于客户来说,买房首先看的是地段、交通、未来的 发 展点,再根据您的实际预算选择相应的楼盘,不要盲目的选择,选到自己喜欢的房子才是。您的一声托付、我必全力以赴,期待您的到来
-
小区配套问经纪人
小区环境优雅,配套成熟,周边交通便利,舒适。
-
服务介绍问经纪人
个人宣言:打造体验,因产生效率!: 为您选房→配房→带您看房→满意→付意向→转定→签合同→首付→交易过户→新产证→交房(水电煤过户)期待您的,本人承诺将全程为你提供保密,不必担心会有其他人的电话骚扰
-
税费分析房贷计算
产权干净,税费清晰,欢迎咨询该房屋详情,静候您的!
周边配套
交通综合评分
查看全部超过上海7.6%的小区
-
地铁公交
5.0
-
驾车出行
10.0
-
城际交通
5.0
本月均价 20756元/m²
环比上月 持平
同比去年 下跌 6.95%
猜你喜欢
同小区其它房源
户型齐全,主打明厨,明卫,客厅朝南,全明格局,双卧朝南三居
赞成红树林户型主要有105平-154平的明厨,明卫,客厅朝南,全明格局,双卧朝南的三居 、87平-127平的户型方正,明卫,明厨,主卧朝南的二居 、134平-154平的户型方正,明卫,明厨的四居 。
*获取完整户型报告,同时会有免费语音讲解服务
-
15647元/㎡
本月挂牌均价
-
持平
环比上月
- 免费咨询
- 专业服务
- 区域解读
- 户型分析


