江南万达旁 地铁口 精装修3房 自住保养好看房方便
-
86万
总价
-
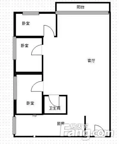
3室2厅1卫
户型
-
91㎡
建筑面积
买房加房产交流群,省钱不踩雷
3000+人正在热聊
-
单价
9451元/平米
- 挂牌价格解析
-
楼层
低楼层/32层
- 咨询楼层
-
套内
暂无数据
- 咨询套内使用面积
-
楼型
塔楼
-
朝向
南北
-
装修
其他
-
供暖
暂无数据
-
年代
2018
-
发布
2024-10-31
-
地铁
距2号线福建园站约361米
-
深度测评
小区荣耀江南(江南-白沙片区)
-
更多
楼户比、楼层高度、交易历史、抵押信息
房源描述(1)
-
核心卖点问经纪人
1、看房方便 2、小区绿化好、很安静居住很舒服、停车宽裕、出行方便 3、房子采光好、南北通透、房间都很敞亮、户型方正不浪费 4、周边有大型市、和菜市,买菜和买生活用品很齐全 5、交通方便、一号线多路公交到达南宁各个地方 6、纯手工拍照、图片很真实、好房子不等人、请尽快联系我看房 7、如果这套不合适,我这里还有很多房源
-
业主心态问经纪人
业主很信任我,我能了解业主卖房新的动态。目前市场交易量平稳,政策已经基本稳定,是市场触底入手的好时候。请不要错过性价比高的好房。
-
小区配套问经纪人
。
-
服务介绍问经纪人
本人做房产多年,本着专业的房产知识,为您服务,我会在短的时间内帮您买好满意的房子,不让您错失任何好房子,更不让您每天为买房的事烦心,欢迎随时联系!
周边配套
交通综合评分
查看全部超过南宁34.2%的小区
-
地铁公交
10.0
-
城际交通
4.0
本月均价 10797元/m²
环比上月 下跌 2.13%
同比去年 下跌 8.15%
猜你喜欢
同小区其它房源
户型齐全,主打户型方正,明卫,明厨,主卧朝南三居
荣耀江南户型主要有72平-119平的户型方正,明卫,明厨,主卧朝南的三居 、106平-121平的户型方正,明卫,明厨,客厅朝南,全明格局的四居 、68平-90平的户型方正,明卫,双阳台,主卧朝南的二居 。
*获取完整户型报告,同时会有免费语音讲解服务
-
7706元/㎡
本月挂牌均价
-
0.54%
环比上月
买房加房产交流群,省钱不踩雷
3000+人正在热聊
- 免费咨询
- 专业服务
- 区域解读
- 户型分析


