阳光城丽景湾(翡翠湾)别墅5房3厅毛坯260万
-
260万
总价
-
5室3厅3卫
户型
-
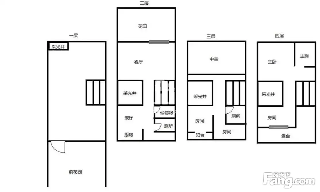
205㎡
建筑面积
买房加房产交流群,省钱不踩雷
3000+人正在热聊
-
单价
12683元/平米
- 挂牌价格解析
-
楼层
底层/1层
- 咨询楼层
-
套内
188㎡
- 咨询套内使用面积
-
楼型
板楼
-
朝向
南北
-
装修
毛坯
-
年代
2017
-
发布
2025-12-22
-
地铁
暂无数据
-
深度测评
小区阳光城丽景湾(邕宁-龙岗新区)
-
更多
楼户比、楼层高度、交易历史、抵押信息
房源描述(1)
-
核心卖点问经纪人
推荐理由1、 小区周边交通便利,生活配套设施齐全,生活十分便利2、公交地铁十分方便。出行方便,上下班方便3、购物方便节省您宝贵的时间4、小区绿化,环境优美,宁静和谐,好环境总会给人带来好心情5、房间干净整洁,温馨舒适,窗明几净,就等着您的拎包入住6、宽敞明亮,布局大方,采光好
-
业主心态问经纪人
业主很信任我,我能了解业主卖房新的动态。目前市场交易量平稳,政策已经基本稳定,是市场触底入手的好时候。请不要错过性价比高的好房。
-
小区配套问经纪人
。
-
服务介绍问经纪人
本人做房产多年,本着专业的房产知识,为您服务,我会在短的时间内帮您买好满意的房子,不让您错失任何好房子,更不让您每天为买房的事烦心,欢迎随时联系!
周边配套
交通综合评分
查看全部超过南宁13.0%的小区
-
地铁公交
5.0
-
驾车出行
10.0
本月均价 8542元/m²
环比上月 下跌 0.3%
同比去年 下跌 11.42%
猜你喜欢
同小区其它房源
户型齐全,主打独立车库,独立庭院三居
阳光城丽景湾户型主要有80平-104平的独立车库,独立庭院的三居 、117平-233平的户型方正,双阳台的四居 、56平-68平的南北通透,卧室带阳台的二居 。
*获取完整户型报告,同时会有免费语音讲解服务
-
8216元/㎡
本月挂牌均价
-
0.56%
环比上月
买房加房产交流群,省钱不踩雷
3000+人正在热聊
- 免费咨询
- 专业服务
- 区域解读
- 户型分析


