江湾山语城房子保养好,性价比高
-
148万
总价
-
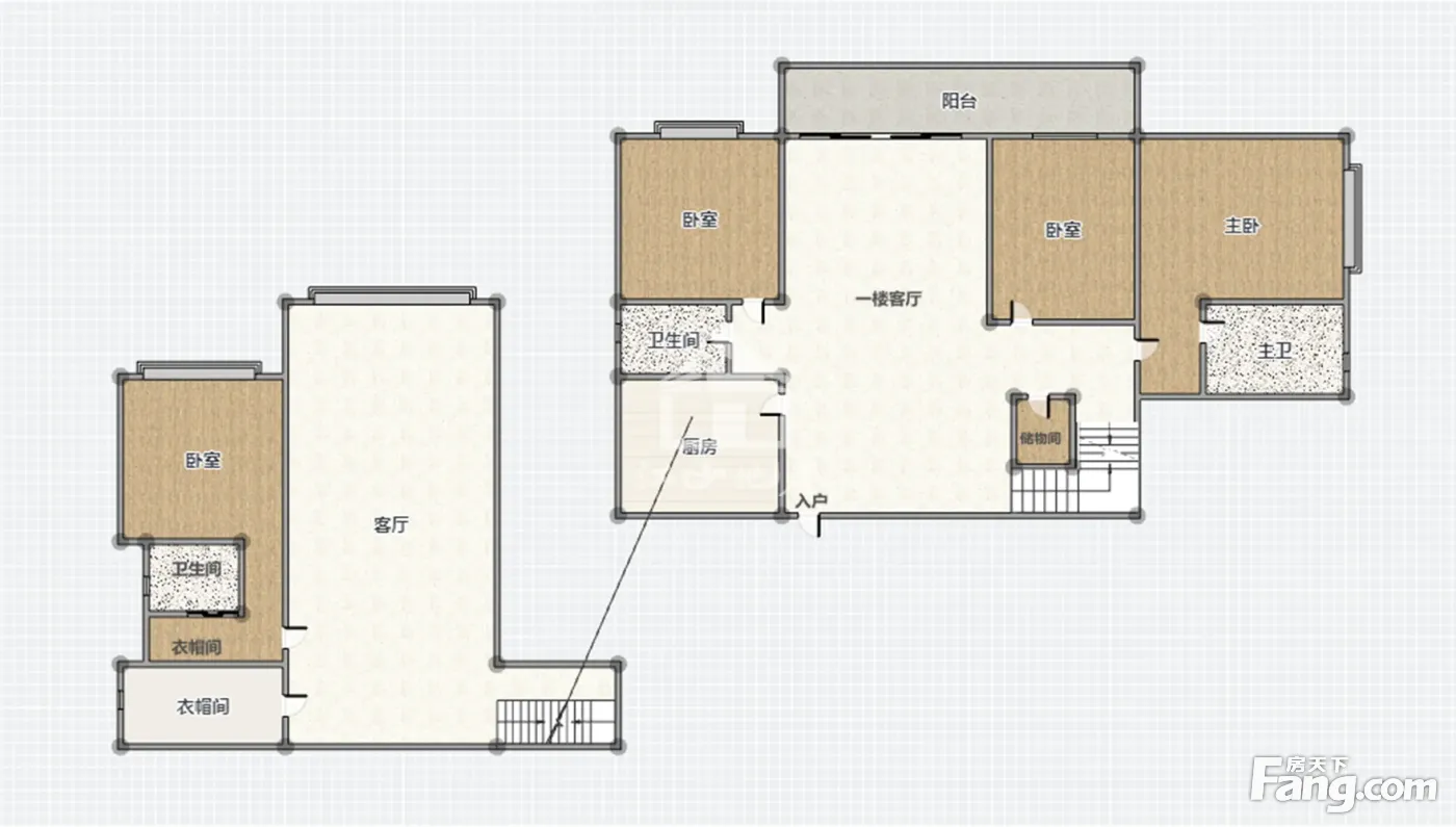
5室2厅3卫
户型
-
189㎡
建筑面积
买房加房产交流群,省钱不踩雷
3000+人正在热聊
加入群聊
-
单价
7831元/平米
- 挂牌价格解析
-
楼层
高层/43层
- 咨询楼层
-
套内
188㎡
- 咨询套内使用面积
-
楼型
板楼
-
朝向
南北
-
装修
豪华装修
-
年代
2015
-
发布
2025-12-13
-
深度测评
小区中国铁建江湾山语城(邕宁-龙岗新区)
-
更多
楼户比、楼层高度、交易历史、抵押信息
房源描述(1)
周边配套
地址:江湾路7号(龙岗大桥旁)
交通综合评分
查看全部5.0
“一般”
超过南宁3.1%的小区
-
地铁公交
5.0
-
驾车出行
10.0
本月均价 9614元/m²
环比上月 上涨 0.54%
同比去年 下跌 14.03%
猜你喜欢
同小区其它房源
户型齐全,主打明卫,双阳台,主卧朝南四居
中国铁建江湾山语城户型主要有89平-213平的明卫,双阳台,主卧朝南的四居 、79平-159平的户型方正,明厨,双卧朝南,主卧朝南的三居 、126平-330平的户型方正,双阳台的五居 。
*获取完整户型报告,同时会有免费语音讲解服务
-
8216元/㎡
本月挂牌均价
-
0.56%
环比上月
买房加房产交流群,省钱不踩雷
3000+人正在热聊
加入群聊
- 免费咨询
- 专业服务
- 区域解读
- 户型分析
免责声明:房源信息由网站用户提供,其真实性、合法性由信息提供者负责,最终以政府部门登记备案为准。本网站不声明或保证内容之正确性和可靠性,购买该房屋时,请谨慎核查。入学情况仅凭历史经验总结,在此不承诺升学事宜。请您在签订合同之前,切勿支付任何形式的费用,以免上当受骗。

