带露台 精装楼中楼 拎包入住
-
380万
总价
-
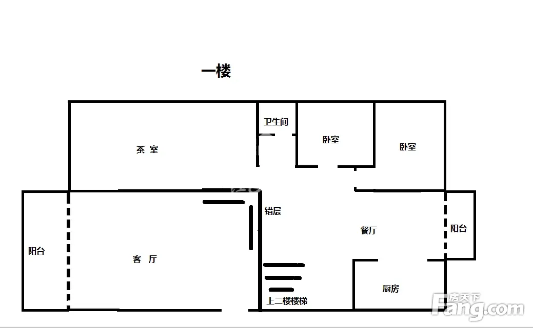
5室2厅4卫
户型
-
245.11㎡
建筑面积
买房加房产交流群,省钱不踩雷
3000+人正在热聊
加入群聊
-
单价
15503元/平米
- 挂牌价格解析
-
楼层
顶层/18层
- 咨询楼层
-
套内
204.44㎡
- 咨询套内使用面积
-
楼型
板楼
-
朝向
南
-
装修
精装修
-
年代
2003
-
发布
2025-04-27
-
地铁
距3号线滨湖路站约527米
-
深度测评
小区南湖碧园(青秀-东葛片区)
-
更多
楼户比、楼层高度、交易历史、抵押信息
房源描述(1)
周边配套
地址:碧湖北路1号(长湖茶花园路口)
交通综合评分
查看全部6.1
“较好”
超过南宁46.2%的小区
-
地铁公交
10.0
-
驾车出行
7.0
本月均价 14555元/m²
环比上月 下跌 0.96%
同比去年 上涨 5.63%
猜你喜欢
同小区其它房源
-
10538元/㎡
本月挂牌均价
-
0.67%
环比上月
买房加房产交流群,省钱不踩雷
3000+人正在热聊
加入群聊
- 免费咨询
- 专业服务
- 区域解读
- 户型分析
免责声明:房源信息由网站用户提供,其真实性、合法性由信息提供者负责,最终以政府部门登记备案为准。本网站不声明或保证内容之正确性和可靠性,购买该房屋时,请谨慎核查。入学情况仅凭历史经验总结,在此不承诺升学事宜。请您在签订合同之前,切勿支付任何形式的费用,以免上当受骗。


