盛世华城3室2厅2卫南朝向204.0万元/套出售
-
204万
总价
-
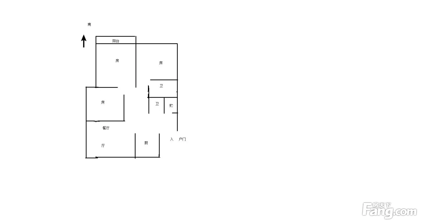
3室2厅2卫
户型
-
152.77㎡
建筑面积
买房加房产交流群,省钱不踩雷
3000+人正在热聊
加入群聊
-
单价
13353元/平米
- 挂牌价格解析
-
楼层
高层/23层
- 咨询楼层
-
套内
暂无数据
- 咨询套内使用面积
-
朝向
南
-
装修
精装修
-
年代
2005
-
发布
2026-05-02
-
地铁
暂无数据
-
咨询总首付
首付约89.3万
首付税费及佣金情况 -
深度测评
小区盛世华城(海曙-联丰路)
-
更多
楼户比、楼层高度、交易历史、抵押信息
-
核验码
202511043302030012
房源描述(1)
-
核心卖点
小区环境好,交通方便,小区近学校,,,,,,
-
业主心态
房东诚心售,有诚心客户,价可,以谈,,,,,
周边配套
地址:薛家南路30号
交通综合评分
查看全部6.9
“较好”
超过宁波35.7%的小区
-
地铁公交
9.0
-
驾车出行
7.0
-
城际交通
4.0
本月均价 14909元/m²
环比上月 下跌 1.5%
同比去年 下跌 17.98%
猜你喜欢
同小区其它房源
户型齐全,主打户型方正,明卫,明厨,客厅朝南,全明格局三居
盛世华城户型主要有93平-157平的户型方正,明卫,明厨,客厅朝南,全明格局的三居 、133平-207平的独立衣帽间,明厨,明卫,客厅朝南,全明格局的四居 、68平-122平的户型方正的二居 。
*获取完整户型报告,同时会有免费语音讲解服务
-
18560元/㎡
本月挂牌均价
-
1.33%
环比上月
买房加房产交流群,省钱不踩雷
3000+人正在热聊
加入群聊
- 免费咨询
- 专业服务
- 区域解读
- 户型分析
免责声明:房源信息由网站用户提供,其真实性、合法性由信息提供者负责,最终以政府部门登记备案为准。本网站不声明或保证内容之正确性和可靠性,购买该房屋时,请谨慎核查。入学情况仅凭历史经验总结,在此不承诺升学事宜。请您在签订合同之前,切勿支付任何形式的费用,以免上当受骗。



