山大路单位宿舍大院传达停车方便
-
120万
总价
-
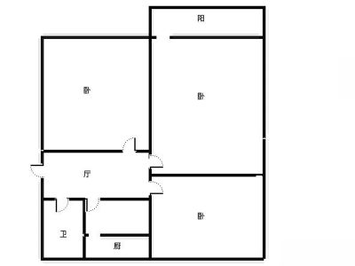
3室1厅
户型
-
80.62㎡
建筑面积
买房加房产交流群,省钱不踩雷
3000+人正在热聊
加入群聊
-
单价
14885元/平米
- 挂牌价格解析
-
楼层
中楼层/5层
- 咨询楼层
-
套内
73.29㎡
- 咨询套内使用面积
-
楼型
板塔结合
-
朝向
南北
-
装修
其他
-
供暖
集中供暖
-
发布
2024-02-21
-
地铁
距6号线山东大学站约203米
-
咨询总首付
首付约52.8万
首付税费及佣金情况 -
深度测评
小区供电局宿舍(山大路)(历城-山大北路)
-
更多
楼户比、楼层高度、交易历史、抵押信息
周边配套
地址:山大路138号
交通综合评分
查看全部3.2
“一般”
超过济南83.3%的小区
-
地铁公交
5.0
-
城际交通
4.0
本月均价 17180元/m²
环比上月 下跌 0.31%
同比去年 上涨 3.86%
猜你喜欢
同小区其它房源
户型齐全,主打户型方正,明厨,客厅朝南,主卧朝南二居
供电局宿舍(山大路)户型主要有80平-97平的户型方正,明厨,客厅朝南,主卧朝南的二居 、82平-126平的户型方正,双卧朝南,主卧朝南的三居 。
*获取完整户型报告,同时会有免费语音讲解服务
-
16524元/㎡
本月挂牌均价
-
0.15%
环比上月
买房加房产交流群,省钱不踩雷
3000+人正在热聊
加入群聊
免责声明:房源信息由网站用户提供,其真实性、合法性由信息提供者负责,最终以政府部门登记备案为准。本网站不声明或保证内容之正确性和可靠性,购买该房屋时,请谨慎核查。入学情况仅凭历史经验总结,在此不承诺升学事宜。请您在签订合同之前,切勿支付任何形式的费用,以免上当受骗。



