华港花园 4房 213 方
-
1280万
总价
-
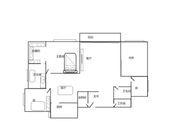
4室2厅2卫
户型
-
213.13㎡
建筑面积
买房加房产交流群,省钱不踩雷
3000+人正在热聊
加入群聊
-
单价
60058元/平米
- 挂牌价格解析
-
楼层
高楼层/30层
- 咨询楼层
-
套内
暂无数据
- 咨询套内使用面积
-
楼型
塔楼
-
朝向
西
-
装修
精装修
-
年代
2010
-
发布
2025-07-10
-
地铁
距11号线华景路站约264米
-
咨询总首付
首付约335.2万
首付税费及佣金情况 -
深度测评
小区华港花园(天河-天河公园)
-
更多
楼户比、楼层高度、交易历史、抵押信息
周边配套
地址:中山大道西东方一路24号
交通综合评分
查看全部8.2
“较好”
超过广州66.2%的小区
-
地铁公交
10.0
-
驾车出行
10.0
-
城际交通
4.0
本月均价 53897元/m²
环比上月 下跌 2.5%
同比去年 下跌 14.31%
猜你喜欢
同小区其它房源
户型齐全,主打户型方正,明卫,明厨,客厅朝南,全明格局,双卧朝南,主卧朝南三居
华港花园户型主要有87平-110平的户型方正,明卫,明厨,客厅朝南,全明格局,双卧朝南,主卧朝南的三居 、45平-108平的户型方正,明卫,明厨,主卧朝南的二居 、120平-204平的户型方正,明厨,明卫,客厅朝南,全明格局的四居 。
*获取完整户型报告,同时会有免费语音讲解服务
-
49212元/㎡
本月挂牌均价
-
1.89%
环比上月
买房加房产交流群,省钱不踩雷
3000+人正在热聊
加入群聊
免责声明:房源信息由网站用户提供,其真实性、合法性由信息提供者负责,最终以政府部门登记备案为准。本网站不声明或保证内容之正确性和可靠性,购买该房屋时,请谨慎核查。入学情况仅凭历史经验总结,在此不承诺升学事宜。请您在签订合同之前,切勿支付任何形式的费用,以免上当受骗。



