凯德山海连城(来电谈价)送家私和车位 全新未入住 随时看房
-
201万
总价
-
4室2厅2卫
户型
-
125㎡
建筑面积
买房加房产交流群,省钱不踩雷
3000+人正在热聊
-
单价
16080元/平米
- 挂牌价格解析
-
楼层
中层/18层
- 咨询楼层
-
套内
124㎡
- 咨询套内使用面积
-
楼型
板楼
-
朝向
南北
-
装修
简装修
-
年代
2020
-
发布
2025-11-14
-
咨询总首付
首付约45.9万
首付税费及佣金情况 -
深度测评
小区凯德山海连城(番禺-石楼)
-
更多
楼户比、楼层高度、交易历史、抵押信息
房源描述(1)
-
核心卖点问经纪人
1.此房源位为小区地带,安静无噪音,舒适安心,小区环境优美,入住率高。 2.小区处于繁华地段,周边地铁公交方便出行,更有各大购物,休闲娱乐场所,购物和生活,都 方便。 3.房内精装可,客厅出阳台宽敞大方使用率,户型方正,南北通透。 4.可随时看房,欢迎电话联系。 5.本房处于中高楼层,通透户型采光好,小区内管理严格,24专业管理,住的舒心踏实!
-
业主心态问经纪人
1【业主心态】:业主诚心卖房,价格合适,业主可以马上签合同。 1,房源,本人亲自看过! 2,户型方正实用,没有浪 的地方 3,业主资金短 出售 4,周边配套成熟,价格比市场价低 5,产权清晰,无按揭贷款,无债务纠纷,已核实,可以随时交易,请放心
-
小区配套问经纪人
小区地理位置佳,绿化环境优越整洁,居民素质高,物业管理完善,适宜居住
-
服务介绍问经纪人
服务:专车接送,全城带看。 全心全意服务: 1:提前预约看房时间,不浪 您的时间 2:提前给您计划看房线路,让您省时省心省力看房 3:全程及时给您跟进新度,使您安心。 4:按照您的需求,为您匹配性价比
-
税费分析房贷计算
关于本房的税费信息情况,请电话联系我,我将详细的为您讲解!
-
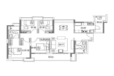
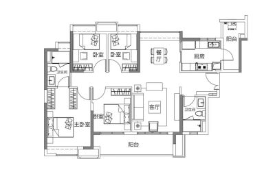
户型解读问经纪人
房屋拥有相对宽松的尺寸,布局通透,动静分离,设计豪华
周边配套
交通综合评分
查看全部超过广州51.8%的小区
-
地铁公交
5.0
-
驾车出行
10.0
本月均价 19104元/m²
环比上月 下跌 0.9%
同比去年 下跌 4.48%
猜你喜欢
同小区其它房源
户型齐全,主打南北通透,主卧带卫,双阳台,入户花园三居
凯德·山海连城户型主要有85平-136平的南北通透,主卧带卫,双阳台,入户花园的三居 、125平-138平的南北通透,采光充足,主卧带卫,带衣帽间,入户花园的四居 、203平-211平的南北通透,开放厨房,双阳台的五居 。
*获取完整户型报告,同时会有免费语音讲解服务
-
13574元/㎡
本月挂牌均价
-
0.46%
环比上月
买房加房产交流群,省钱不踩雷
3000+人正在热聊
- 免费咨询
- 专业服务
- 区域解读
- 户型分析


