龙运天城大平层 稀有户型 五房两卫 好楼层四朝南
-
438万
总价
-
5室2厅2卫
户型
-
168㎡
建筑面积
买房加房产交流群,省钱不踩雷
3000+人正在热聊
加入群聊
-
单价
26071元/平米
- 挂牌价格解析
-
楼层
高楼层/25层
- 咨询楼层
-
套内
暂无数据
- 咨询套内使用面积
-
楼型
板楼
-
朝向
南
-
装修
精装
-
发布
2025-02-15
-
地铁
距2号线五角场站约988米
-
咨询总首付
首付约131.6万
首付税费及佣金情况 -
深度测评
小区龙运天城(天宁-茶山)
-
更多
楼户比、楼层高度、交易历史、抵押信息
房源描述(1)
周边配套
地址:丽华北路东侧、劳动中路南侧
交通综合评分
查看全部5.2
“一般”
超过常州51.7%的小区
-
地铁公交
10.0
-
城际交通
4.0
本月均价 19564元/m²
环比上月 上涨 0.39%
同比去年 下跌 6.33%
猜你喜欢
同小区其它房源
户型齐全,主打户型方正,卧室朝南,双阳台三居
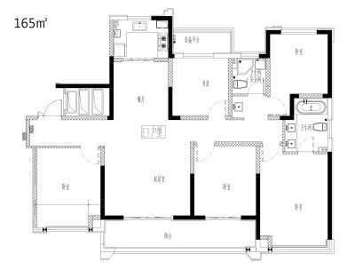
龙运天城户型主要有105平-120平的户型方正,卧室朝南,双阳台的三居 、133平-142平的户型方正,卧室朝南,双阳台的四居 、165平-167平的客厅朝南,卧室朝南,三开间朝南,双阳台的五居 。
*获取完整户型报告,同时会有免费语音讲解服务
-
12915元/㎡
本月挂牌均价
-
0.41%
环比上月
买房加房产交流群,省钱不踩雷
3000+人正在热聊
加入群聊
- 免费咨询
- 专业服务
- 区域解读
- 户型分析
免责声明:房源信息由网站用户提供,其真实性、合法性由信息提供者负责,最终以政府部门登记备案为准。本网站不声明或保证内容之正确性和可靠性,购买该房屋时,请谨慎核查。入学情况仅凭历史经验总结,在此不承诺升学事宜。请您在签订合同之前,切勿支付任何形式的费用,以免上当受骗。


