正规4居 西三环豪宅 人车分流 出行方便 周边配套齐全
-
4690万
总价
-
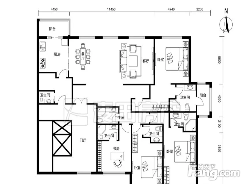
4室2厅6卫
户型
-
518㎡
建筑面积
买房加房产交流群,省钱不踩雷
3000+人正在热聊
-
单价
90541元/平米
- 挂牌价格解析
-
楼层
低层/21层
- 咨询楼层
-
套内
517㎡
- 咨询套内使用面积
-
朝向
南北
-
装修
精装修
-
年代
2006
-
发布
2025-12-27
-
地铁
距1号线(八通线)公主坟站约629米
-
咨询总首付
首付约1551.6万
首付税费及佣金情况 -
深度测评
小区缘溪堂(海淀-军博)
-
更多
楼户比、楼层高度、交易历史、抵押信息
房源描述(1)
-
核心卖点问经纪人
1、属于成熟小区,可购房入户。 2、卧室私密性好,非常温馨,客厅宽敞,非常通风,很高。 3、楼层好,视野好,采光好。 4、看房特别方便,房东诚心出售 。 5、周边配套设施完善
-
业主心态问经纪人
业主诚心出售此房,欢迎您看房,如需了解其他信息请与我联系
-
小区配套问经纪人
小区居民素质高,配套设施齐全,地理位置好,交通便利。
-
服务介绍问经纪人
本人从事房地产经纪行业多年,了解周边小区的物业及生活配套情况,客户满意,是我的职业追求,我相信,拥有专业的知识及真诚的服务才能获得共赢。
-
税费分析房贷计算
产权干净,税费清晰,欢迎来电咨询该房屋详情,静候您的来电!
-
户型解读问经纪人
房屋拥有相对宽松的尺寸,布局通透,动静分离,设计豪华
周边配套
交通综合评分
查看全部超过北京9.5%的小区
-
地铁公交
10.0
-
驾车出行
10.0
-
城际交通
4.5
本月均价 100726元/m²
环比上月 下跌 3.54%
同比去年 下跌 6.78%
猜你喜欢
同小区其它房源
户型齐全,主打户型方正四居
缘溪堂户型主要有380平-519平的户型方正的四居 、291平-325平的户型方正,独立衣帽间,客厅朝南,主卧朝南的三居 、85平-85平的客厅朝南,独立衣帽间的二居 。
*获取完整户型报告,同时会有免费语音讲解服务
-
86984元/㎡
本月挂牌均价
-
0.85%
环比上月
买房加房产交流群,省钱不踩雷
3000+人正在热聊
- 免费咨询
- 专业服务
- 区域解读
- 户型分析

