3室2厅富力桃园C区
-
1050万
总价
-
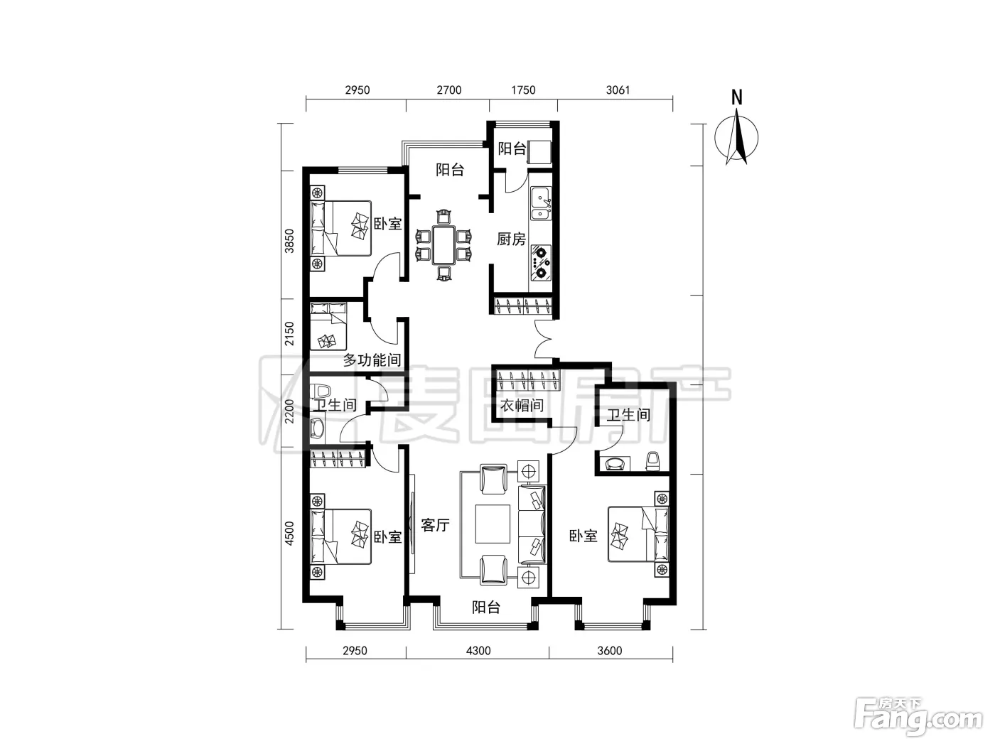
3室2厅2卫
户型
-
156.69㎡
建筑面积
买房加房产交流群,省钱不踩雷
3000+人正在热聊
-
单价
67011元/平米
- 挂牌价格解析
-
楼层
高层/23层
- 咨询楼层
-
套内
暂无数据
- 咨询套内使用面积
-
楼型
板楼
-
朝向
南
-
装修
精装修
-
年代
2008
-
发布
2025-11-16
-
地铁
暂无数据
-
咨询总首付
首付约347.9万
首付税费及佣金情况 -
深度测评
小区富力桃园C区(海淀-西三旗)
-
更多
楼户比、楼层高度、交易历史、抵押信息
房源描述(1)
-
核心卖点问经纪人
相信为您推荐的这套房子您一定会满意,赶快行动吧,先到先得! 房屋年代∶2008,面积∶156.69平方米,朝向∶南 1. 小区配备高端物业管理,让你享受宾至如归的服务; 2. 小区人文素质高,是您的居家的绝佳选择; 3. 小区居住安静舒适,让您拥有高品质的生活环境; 4. 小区绿化率高,绿树成荫鸟语花香让您随时呼吸到新鲜空气。
-
小区配套问经纪人
富力桃园—“世外桃园”,富力桃园由广州富力地产08年打造海淀西三旗高端楼盘。小区占地16万平方米分ABC三个区,容积率2.25。小区人车分流,人文素质高,绿化率达40%以上,市政集中供暖30,物业费2.2,停车位充足1:1,由富力恒富物业统一管理,管理制度完善。富力桃园C区,内设10000平人工湖,湖内有各式各样的观赏鱼,这里环境优美,鸟语花香,楼间距足有100米,走进社区就如同走进公园,让人有一种不想离开的感觉。这样的小区在整个北京来说都非常少见,小区的居住品质和舒适度非常的高。桃园从64平一居室到227平大四居都有,可以满足不
周边配套
交通综合评分
查看全部超过北京77.3%的小区
-
地铁公交
8.0
-
驾车出行
10.0
本月均价 64001元/m²
环比上月 下跌 1.91%
同比去年 下跌 11.8%
猜你喜欢
同小区其它房源
户型齐全,主打户型方正,明卫,客厅朝南,主卧朝南二居
富力桃园户型主要有64平-132平的户型方正,明卫,客厅朝南,主卧朝南的二居 、89平-161平的户型方正,客厅朝南,双卧朝南,主卧朝南的三居 、58平-70平的户型方正,明卫,客厅朝南的一居 。
*获取完整户型报告,同时会有免费语音讲解服务
-
56066元/㎡
本月挂牌均价
-
2.35%
环比上月
买房加房产交流群,省钱不踩雷
3000+人正在热聊
- 免费咨询
- 专业服务
- 区域解读
- 户型分析


