地铁亦庄线,招商·臻珑府,89平南北向精装三居 ,建华实验旁
-
427万
总价
-
3室2厅2卫
户型
-
89㎡
建筑面积
买房加房产交流群,省钱不踩雷
3000+人正在热聊
-
单价
47978元/平米
- 挂牌价格解析
-
楼层
低层/11层
- 咨询楼层
-
套内
88㎡
- 咨询套内使用面积
-
楼型
板楼
-
朝向
南北
-
装修
精装修
-
年代
2022
-
发布
2025-02-16
-
地铁
距亦庄T1线定海园站约451米
-
咨询总首付
首付约126.3万
首付税费及佣金情况 -
深度测评
小区招商·臻珑府(通州-亦庄)
-
更多
楼户比、楼层高度、交易历史、抵押信息
房源描述(1)
-
核心卖点问经纪人
核心 招商臻珑府,由百年招商蛇口旗下北京公司倾力打造,择址亦庄东区,地铁亦庄线,周边小米研发中心,京东总部形成优厚的区域氛围。周边资源雄厚,建华推门可见。承袭臻园,珑园真髓,精雕式建筑群,景里有趣,趣衍生活。以灵动空间彰显生活美學,全面换新亦庄生活价值。 亦庄新城,作为国际科技创新中心“三城一区”主平台,高精尖产业主阵地,推动产城融合,通明湖信创园双千亿产业集群园区规划逐步兑现,形成科创产业与生活配套全服务场景价值高地。
-
业主心态问经纪人
业主心态 地铁17号线,南北交通大动脉,贯穿经开区、CBD、望京、未来科學城,与亦庄核心区、副中心、双机场等区域串联,欢迎看房。
-
小区配套问经纪人
小区配套 【】景山xue xiao、北京小xue、北京八中 【医疗】亦庄同仁三甲医院、北京爱育华妇儿医院、通州第三医院等,为健康保驾护航 【】亦庄山姆会员店、大族广场、亦庄龙湖天街、信创园中心等 【环境】通明湖公园、嘉会湖湿地公园,尽揽超百万方绿色生态大境 【交通】 三横:东五环、东六环、通马路快速通达国贸、通州城区、亦庄核心区; 三纵:京哈高速、京津高速、京沪高速快速衔接内外城, 五轨道:地铁17号线、亦庄线、京津城际高铁、T1、S6线
-
服务介绍问经纪人
很荣幸、您在百忙之中浏览我发的房源、如果您对此房感兴趣 、可以点击下方与我微聊、也可也拨打我电话24欢迎您的来电、本人做房产多年,一直本着专业的房产知识,为您服务,我会在短的时间内帮您买好满意的房子,
-
税费分析房贷计算
关于本房的税费信息情况,请电话联系我,我将详细的为您讲解!
-
户型解读问经纪人
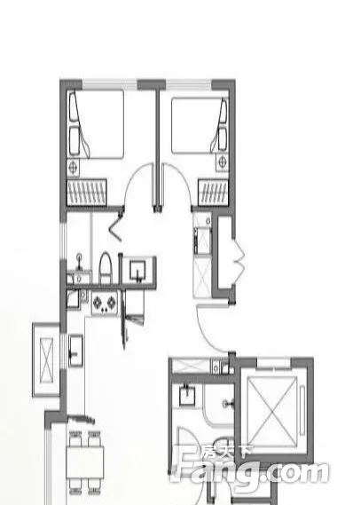
房屋拥有相对宽松的尺寸,布局通透,动静分离,设计豪华
周边配套
本月均价 47545元/m²
环比上月 下跌 3.9%
同比去年 下跌 5.38%
户型齐全,主打全明格局,主卧带卫,明厨明卫,干湿分离,餐客分离三居
招商·臻珑府户型主要有89平-89平的全明格局,主卧带卫,明厨明卫,干湿分离,餐客分离的三居 、57平-57平的采光充足,客厅朝南,卧室朝南,U型厨房,干湿分离,明厨的一居 、77平-77平的南北通透,客厅朝南,卧室朝南,明厨明卫,餐客分离的二居 。
*获取完整户型报告,同时会有免费语音讲解服务
买房加房产交流群,省钱不踩雷
3000+人正在热聊
- 免费咨询
- 专业服务
- 区域解读
- 户型分析


