新出!龙湖颐和原著 带电梯 单层面积260平 停6辆车
-
12500万
总价
-
5室3厅4卫
户型
-
751㎡
建筑面积
买房加房产交流群,省钱不踩雷
3000+人正在热聊
加入群聊
-
单价
166445元/平米
- 挂牌价格解析
-
楼层
2层
- 咨询楼层
-
套内
750㎡
- 咨询套内使用面积
-
楼型
独栋
-
朝向
南
-
装修
精装修
-
年代
2011
-
发布
2025-10-21
-
地铁
距4号线大兴线西苑站约561米
-
咨询总首付
首付约4134.3万
首付税费及佣金情况 -
深度测评
小区龙湖颐和原著(海淀-颐和园)
-
更多
楼户比、楼层高度、交易历史、抵押信息
房源描述(1)
-
核心卖点问经纪人
☆本房地下两层,地上两层,二层和阳台不算面积,使用面积1平; ☆把东边,北入户,300平超大院儿,无错层结构,餐客厅分离,客厅层高7米,全屋落地窗,空间通透敞亮; ☆室内带电梯,全套房设计,适合一家三代人居住; 您好!我是地产房产,从事海淀四季青及西山地区的一手新房与二手房买卖与租赁业务!主要服务小区:wehouse,郦城,诸子阶,汤泉逸墅,颐和金茂府,香山壹号院,西山美墅馆,檀香山,燕西台,自在香山,御墅临风,西山美庐,香山清琴麓苑,香山清琴山庄,远洋天著春秋,半山枫林,御园,龙湖颐和原著,万城华府,万柳书院,鲁艺上河村,世纪城等!
-
业主心态问经纪人
业主诚意变现,清晰业主及 情况,随时可以交易。
-
小区配套问经纪人
小区地理位置佳,绿化环境优越整洁,居民素质高,物业管理完善,适宜居住。
-
服务介绍问经纪人
您好!我是房产樊允,从事海淀四季青及西山地区的房屋租赁买卖工作,主要服务小区:wehouse,郦城,诸子阶,汤泉逸墅,西山美墅馆,檀香山,燕西台,自在香山,御墅临风,西山美庐,香山清琴麓苑,香山清琴山
-
税费分析房贷计算
关于本房的税费信息情况,请电话联系我,我将详细的为您讲解!
-
户型解读问经纪人
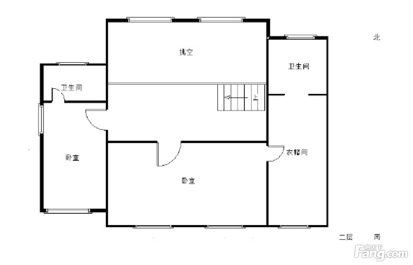
房屋拥有相对宽松的尺寸,布局通透,动静分离,设计豪华。
周边配套
地址:二龙闸路南侧,圆明园西路
交通综合评分
查看全部7.0
“较好”
超过北京50.6%的小区
-
地铁公交
10.0
-
驾车出行
10.0
-
83769元/㎡
本月挂牌均价
-
1.13%
环比上月
买房加房产交流群,省钱不踩雷
3000+人正在热聊
加入群聊
- 免费咨询
- 专业服务
- 区域解读
- 户型分析
免责声明:房源信息由网站用户提供,其真实性、合法性由信息提供者负责,最终以政府部门登记备案为准。本网站不声明或保证内容之正确性和可靠性,购买该房屋时,请谨慎核查。入学情况仅凭历史经验总结,在此不承诺升学事宜。请您在签订合同之前,切勿支付任何形式的费用,以免上当受骗。

