首开香溪郡,业主急售 ,现房,即买即住,随时过户
-
222万
总价
-
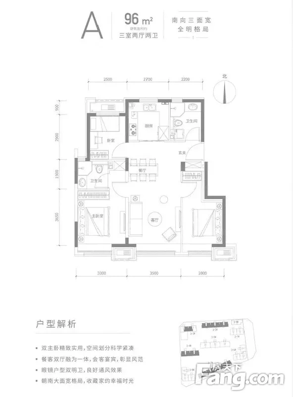
3室2厅2卫
户型
-
96㎡
建筑面积
买房加房产交流群,省钱不踩雷
3000+人正在热聊
-
单价
23125元/平米
- 挂牌价格解析
-
楼层
底层/6层
- 咨询楼层
-
套内
86.4㎡
- 咨询套内使用面积
-
楼型
板楼
-
朝向
南北
-
装修
精装修
-
年代
2021
-
发布
2025-12-09
-
地铁
暂无数据
-
咨询总首付
首付约66.7万
首付税费及佣金情况 -
深度测评
小区首开香溪郡(通州-通州其它)
-
更多
楼户比、楼层高度、交易历史、抵押信息
房源描述(1)
-
核心卖点问经纪人
核心卖点 项目名称:金地北京壹街区 价格:每平米4.5万左右,小73平米南北两居,首付110万 特点:项目是2021年新地块,小区全部是洋房板楼,总高8层,精装交房 通州宋庄是定位国际艺术文化中心,板块艺术气息浓厚 项目格局:两居室为73㎡、78㎡;三居85㎡、96㎡、109㎡;四居125㎡、143㎡、165㎡
-
业主心态问经纪人
业主心态 1.所售房源无差价; 2.交房时只需缴纳正常购房契税,购房成本低,品质很高! 3.您信任我,我根据您的需求真诚为您分析置业北京在售的项目!
-
小区配套问经纪人
小区地理位置佳,绿化环境优越整洁,居民素质高,物业管理完善,适宜
-
服务介绍问经纪人
服务介绍 我们的服务从您的一个电话开始,到您顺利拿到 手续,入住新宅。尽全力做到更好。如您有什么不解之处,可以扫一扫微聊联系我,或者直接电话联系我! 本人承诺所有房源真实有效,绝不拿虚假房源吸引客
-
税费分析房贷计算
关于本房的税费信息情况,请电话联系我,我将详细的为您讲解!
周边配套
本月均价 29147元/m²
环比上月 下跌 3.13%
同比去年 下跌 12.1%
猜你喜欢
同小区其它房源
户型齐全,主打户型方正,干湿分离三居
首开香溪郡户型主要有90平-193平的户型方正,干湿分离的三居 、116平-190平的南北通透,全明格局的四居 、80平-103平的户型方正,明厨,双阳台,主卧朝南的二居 。
*获取完整户型报告,同时会有免费语音讲解服务
-
26979元/㎡
本月挂牌均价
-
1.29%
环比上月
买房加房产交流群,省钱不踩雷
3000+人正在热聊
- 免费咨询
- 专业服务
- 区域解读
- 户型分析


