低至108 环球都会一手直租212平精装3房坐24人
-
108元/平米·月
租金
-
精装修
装修
-
212㎡
建筑面积
租房不踩坑
3000+人正在热聊
加入群聊
-
楼盘名称
环球都会广场
-
区域
天河
-
物业费
35元/平米·月
-
类型
暂无
-
等级
暂无
-
挂牌时间
2026-01-29
-
支付方式
押二付一
-
入驻时间
2024-12-21
费用明细
-
押二付一
付款方式
-
108
租金(元/平米·月)
-
***
押金
-
***
服务费
- 房租含取暖费吗?
- 房租含物业费吗?
房源描述
-
房源亮点问经纪人
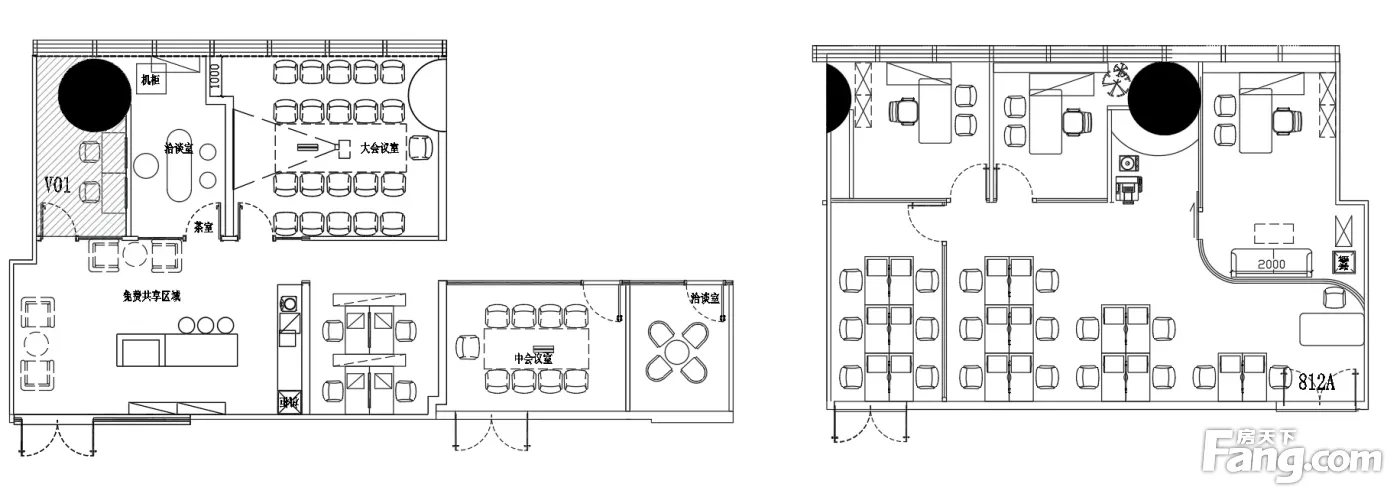
【环球都会广场】 南向??大气前台??近电梯 面积:212㎡(产权面积) 间隔:老板室?室?财务室?会议室?12工位?4会议室 租金:25440元 管理费:7420元 总价:32860元 朝向:东北
-
服务介绍问经纪人
服务介绍 1、全程透明,不收取中介费; 2、、一个电话立马带您看楼; 2、专业服务,为您、匹配适合的盘源; 3、带看、签约、验房、交接全程参与跟进、无微不至的服务让客户满意; 4、免费写字楼报告、
-
周边配套问经纪人
配套设施大厦硬件配比高:高速进口电梯,双线运营,侯梯时间短;VAV空调系统、APM值监控,办公更加舒适;停车位充足,没有停车烦恼:层间配套好,实用更舒心:周边配套好(餐饮、交通、酒店聚集),员工体验更好。位置优越项目位于珠江东路主干道上,西面为花城汇绿化广场,南面临江,占据珠江新城,中轴线上。
-
交通出行问经纪人
珠江新城猎德双地铁、APM站步行5左右即可到达楼下。门口多条公交,出行方便
天河珠江新城中
周边配套
地址:花城大道68号
- 免费咨询
- 专业服务
- 区域解读
- 户型分析
免责声明:房源信息由网站用户提供,其真实性、合法性由信息提供者负责,最终以政府部门登记备案为准。本网站内容凡涉及面积单位均为建筑面积,本网站不声明或保证内容之正确性和可靠性,租赁该房屋时,请谨慎核查。

