唯品会大厦 高区270度一线江景 高实用率 可24空调
-
130.04元/平米·月
租金
-
精装修
装修
-
1142㎡
建筑面积
租房不踩坑
3000+人正在热聊
加入群聊
-
楼盘名称
唯品会琶洲总部大厦
-
区域
海珠
-
物业费
暂无
-
类型
纯写字楼
-
等级
暂无
-
挂牌时间
2025-04-22
-
支付方式
面议
-
入驻时间
2025-03-19
费用明细
-
面议
付款方式
-
130.04
租金(元/平米·月)
-
***
押金
-
***
服务费
- 房租含取暖费吗?
- 房租含物业费吗?
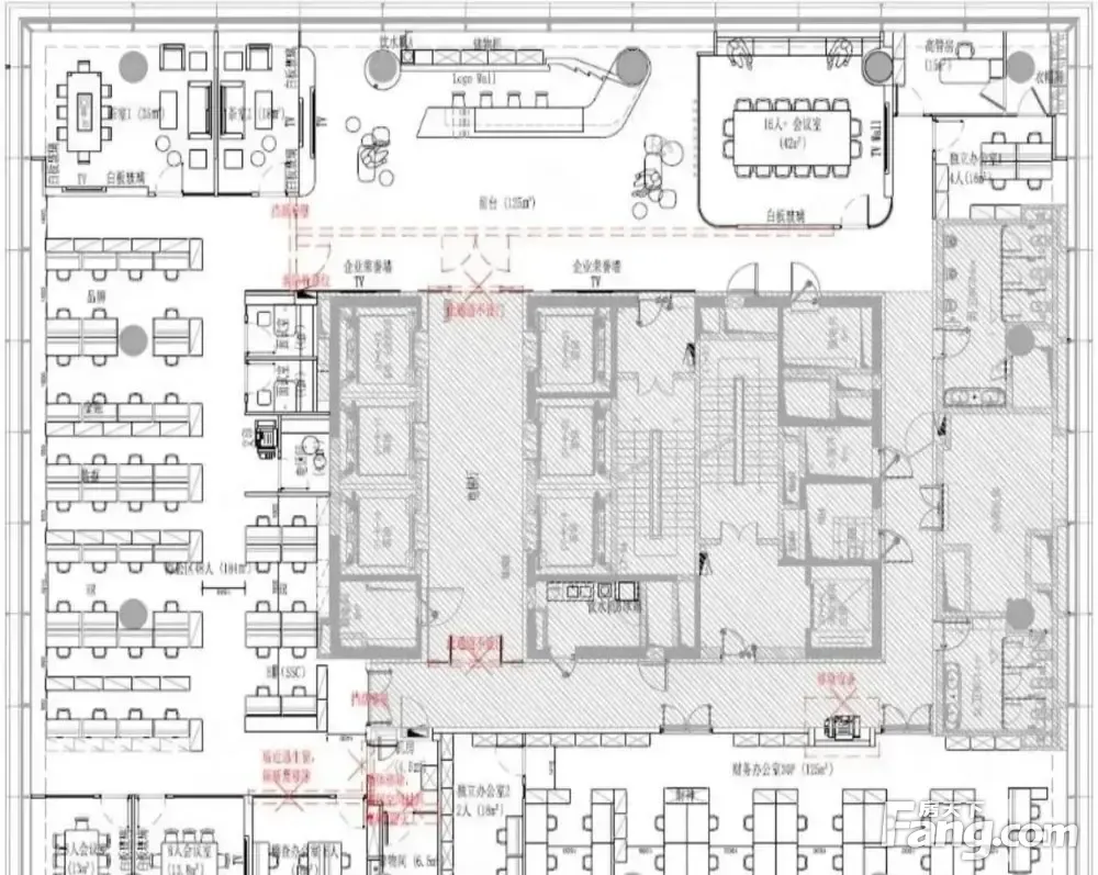
房源描述
-
房源亮点问经纪人
首先恭喜您找到了专业的销售顾问,房源可能一样,但是销售的专业和服务不一样,我是广州尚业房代理有限公司曹晓婷,我为恒成打call提供线上视频看房,有需要请随时联系我 广州尚业房代理有限公司楼盘介绍 1、楼盘名称:唯品会琶洲总部大厦 2、出租面积:1142平米 3、房屋报价:130元/方/月 4、房屋现状:精装交付 5、网络通讯:联通、电信、移动 6、房屋情况:带隔间 7、交通情况:地铁8/18号线磨碟沙站 (1)全程免费看房,分文不取。 (2)专业的团队为您匹适房源,让您省时、省力。 (3)强大的资源系统,让您全面了解项目以及市场。 (4)带看、签约、验房、交接等全程参与,用无微不至的服务让您满意。 如果您觉得这套房子和您需求稍有差距,请您抽出宝贵时间联系我、或者点击我的头像进入店铺只需要告诉我: (1)您需要哪个区域的房子? (2)您的预算是多少? (3)您的用房时间? (4)您对装修情况的要求? (5)您是否有特定的要求?如:朝向、交通、医疗、基础设施...我会根据您的需求给您找到符合您要求让您满意的房源! 联系我时,请说是在上看到的,谢谢!
-
服务介绍问经纪人
首先恭喜您找到了专业的销售顾问,房源可能一样,但是销售的专业和服务不一样,我是广州尚业房代理有限公司曹晓婷,我为恒成打call提供线上视频看房,有需要请随时联系我 广州尚业房代理有限公司楼盘介绍
-
周边配套问经纪人
小区居民素质高,配套设施齐全,地理位置好,交通便利。
-
交通出行问经纪人
产权干净,税费清晰,欢迎来电咨询该房屋详情,静候您的来电!
海珠琶洲
建成2020年
周边配套
地址:琶洲互联网创新集聚区A区
- 免费咨询
- 专业服务
- 区域解读
- 户型分析
免责声明:房源信息由网站用户提供,其真实性、合法性由信息提供者负责,最终以政府部门登记备案为准。本网站内容凡涉及面积单位均为建筑面积,本网站不声明或保证内容之正确性和可靠性,租赁该房屋时,请谨慎核查。


