18000
元/月
面议
3室2厅西钓鱼台嘉园1
-
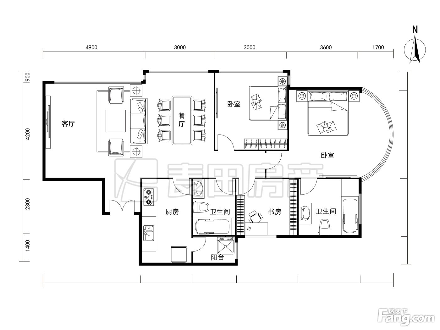
3室2厅2卫
整租
-
135㎡
面积
-
低层/22层
楼层
-
东南北
朝向
2026-01-31更新
租房不踩坑
3000+人正在热聊
加入群聊
-
看房
暂无
-
装修
精装修
-
入住
暂无
-
咨询经纪人,了解更多房源信息
问一问
郑重提示:请您在签订合同之前,切勿支付任何形式的费用,以免上当受骗。
费用明细
-
面议
付款方式
-
18000
租金(元/月)
-
***
押金
-
***
服务费
- 房租含取暖费吗?
- 房租含物业费吗?
房源描述
-
房源亮点问经纪人
相信为您推荐的这套房子您一定会满意,赶快行动吧,先到先得! 房屋年代∶2005,面积∶135.0平方米,朝向∶东南北 1. 小区配备高端物业管理,让你享受宾至如归的服务; 2. 小区人文素质高,是您的居家的绝佳选择; 3. 小区居住安静舒适,让您拥有高品质的生活环境; 4. 小区绿化率高,绿树成荫鸟语花香让您随时呼吸到新鲜空气。
-
小区配套问经纪人
西钓鱼台嘉园,位于西三环中路,东临钓鱼台,南濒昆玉河,北靠137公顷的玉渊潭,享有京城的67公顷巨幅水域,COD中央辖区最后一处山水领邸,位置得天独厚,城市山水园林,堪称。总占地约4.3公顷,建筑面积约20万平方米,整体建筑为欧式新古典主义风格,园林景观布局对称,配以欧式贵族花园平台和欧式复古的园林小品,尽显贵族气质。
周边配套
地址:海淀西三环钓鱼台村1号
- 免费咨询
- 专业服务
- 区域解读
- 户型分析
免责声明:房源信息由网站用户提供,其真实性、合法性由信息提供者负责,最终以政府部门登记备案为准。本网站内容凡涉及面积单位均为建筑面积,本网站不声明或保证内容之正确性和可靠性,租赁该房屋时,请谨慎核查。


