7200
元/月
押一付三
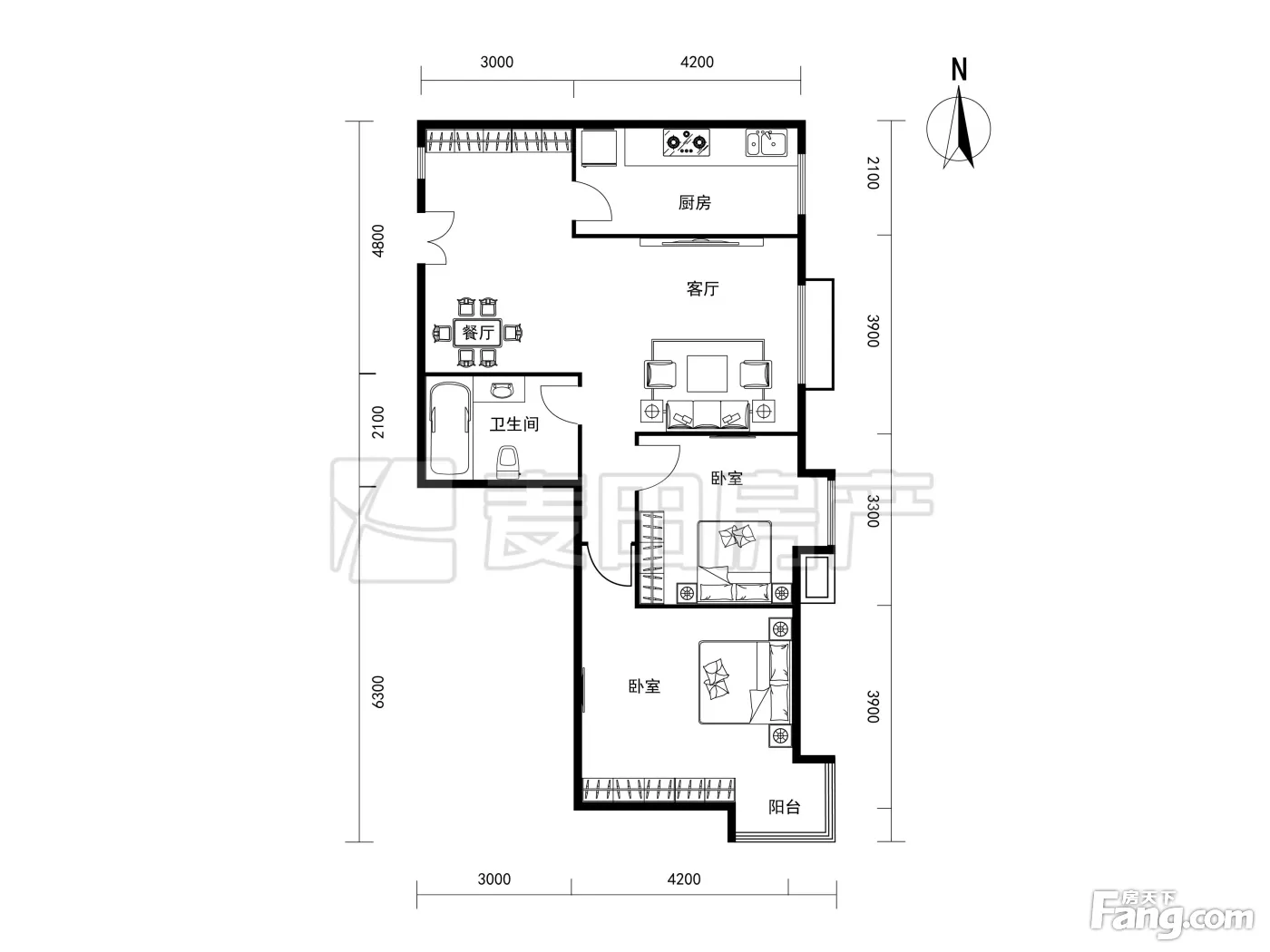
兰德华庭3室2厅精装修
-
3室2厅1卫
整租
-
92㎡
面积
-
高层/13层
楼层
-
东南
朝向
2026-01-02更新
租房不踩坑
3000+人正在热聊
加入群聊
-
看房
暂无
-
装修
精装修
-
入住
2025-11-29 08:00:00
-
咨询经纪人,了解更多房源信息
问一问
郑重提示:请您在签订合同之前,切勿支付任何形式的费用,以免上当受骗。
费用明细
-
押一付三
付款方式
-
7200
租金(元/月)
-
***
押金
-
***
服务费
- 房租含取暖费吗?
- 房租含物业费吗?
房源描述
-
房源亮点问经纪人
相信为您推荐的这套房子您一定会满意,赶快行动吧,先到先得! 房屋年代∶2006,面积∶92.0平方米,朝向∶东南 1. 小区配备高端物业管理,让你享受宾至如归的服务; 2. 小区人文素质高,是您的居家的绝佳选择; 3. 小区居住安静舒适,让您拥有高品质的生活环境; 4. 小区绿化率高,绿树成荫鸟语花香让您随时呼吸到新鲜空气。
-
小区配套问经纪人
兰德华庭位于田村路与玉泉路的交汇处, 总占地面积11.84公顷,其中居住区面积8.07公顷,绿化率39.7%。交通便利,东门距离地铁6号线(田村站)仅66米,南门阜石路可直接上四环主道。 居住区总建筑面积21万平方米,其中住宅面积15万平方米,公建面积6万平方米,容积率2.13,2层地下车位。 小区一共11栋楼,分三期建成。其中6号楼为商业配套楼,3、4号楼是2004年建成的,1,2,5,7,10,11号楼是2005年第二期建成的,8,9号楼是2006年第三期建成的。建筑面积面积33-200多平方米,户型多样。
周边配套
地址:阜石路35号
- 免费咨询
- 专业服务
- 区域解读
- 户型分析
免责声明:房源信息由网站用户提供,其真实性、合法性由信息提供者负责,最终以政府部门登记备案为准。本网站内容凡涉及面积单位均为建筑面积,本网站不声明或保证内容之正确性和可靠性,租赁该房屋时,请谨慎核查。


