海淀人民大学地铁口191平出租教育遗留11个对1两间小教室
-
18000元/月
租金
-
简装修
装修
-
191.35㎡
建筑面积
租房不踩坑
3000+人正在热聊
加入群聊
-
楼盘名称
数码银座
-
区域
海淀
-
物业费
19元/平米·月
-
类型
酒店写字楼
-
等级
暂无
-
挂牌时间
2025-12-26
-
支付方式
押一付三
-
入驻时间
2026-01-10
费用明细
-
押一付三
付款方式
-
18000
租金(元/月)
-
***
押金
-
***
服务费
- 房租含取暖费吗?
- 房租含物业费吗?
房源描述
-
房源亮点问经纪人
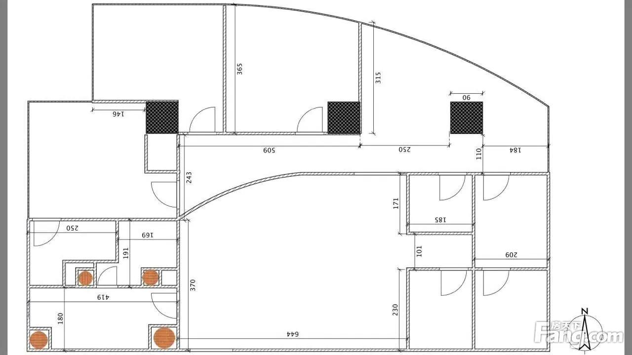
(数码大厦物业)租售部: 项目:本楼盘位于北京市海淀区中关村南大街2号。数码银座 面积:191平米 价格:每月价格18000元净租金,物业费19元每月每平。 付/款:押二付三 签约年限:一年起签 房屋状况:1、房间位于中区,有燃气,厨房,有室内卫生间。到期。 教育遗留,里面租户扩租了,之前是英语培训,有11个1对1的单间,有两间8-12人单独教室,一间卫生间,一间办公室,一间厨房。
-
服务介绍问经纪人
服务介绍: 1、8年行业经验,全程免费服务,随时看房 2、价格包含租金.物业.取暖费. 3、公司免费专车接驳服务 4、内部设备.家具免费维修 5、带看.谈判.合同.物业交接服务
-
周边配套问经纪人
地处经济活跃区,商业配套齐全。 餐饮:数码大厦地下三层有员工食堂,华宇时尚购物中心四层有快餐、地下一层有京东七鲜超市。园区内及一公里内有多家档口式餐饮,全聚德,黄鹤楼,燕兰楼等多家招待宴请餐厅。 影院:华星国际影城,新华国际影城,海淀影剧院等 购物:双安商场,当代商城,华宇购物中心。 宾馆:友谊宾馆
-
交通出行问经纪人
数码大厦停车位充足地面停车们200个,地下三层车位上千。无找车位痛苦。 周边商场环绕,欧美汇、食宝街、新 交通出行40多条公交线路环绕簇拥332、320、716、运通106、116、808、827、941等, 地铁:4号线人民大学站C口
海淀皂君庙
周边配套
地址:中关村南大街2号
- 免费咨询
- 专业服务
- 区域解读
- 户型分析
免责声明:房源信息由网站用户提供,其真实性、合法性由信息提供者负责,最终以政府部门登记备案为准。本网站内容凡涉及面积单位均为建筑面积,本网站不声明或保证内容之正确性和可靠性,租赁该房屋时,请谨慎核查。


