70000
元/月
面议
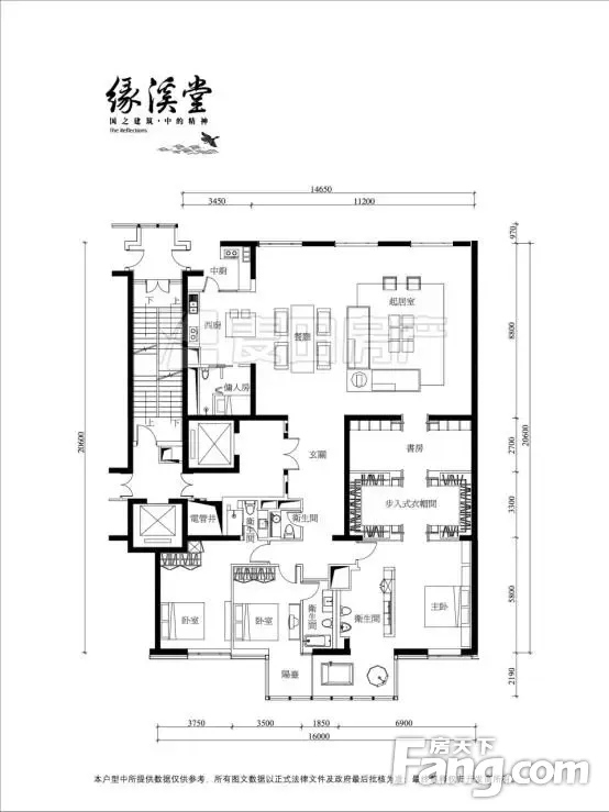
南北通透缘溪堂3室2厅精装修
-
3室2厅4卫
整租
-
394.53㎡
面积
-
低层/21层
楼层
-
南北
朝向
2025-12-19更新
租房不踩坑
3000+人正在热聊
加入群聊
-
看房
暂无
-
装修
精装修
-
入住
2025-11-22 00:00:00
-
咨询经纪人,了解更多房源信息
问一问
郑重提示:请您在签订合同之前,切勿支付任何形式的费用,以免上当受骗。
费用明细
-
面议
付款方式
-
70000
租金(元/月)
-
***
押金
-
***
服务费
- 房租含取暖费吗?
- 房租含物业费吗?
房源描述
-
房源亮点问经纪人
相信为您推荐的这套房子您一定会满意,赶快行动吧,先到先得! 房屋年代∶2007,面积∶394.53平方米,朝向∶南北 1. 小区配备高端物业管理,让你享受宾至如归的服务; 2. 小区人文素质高,是您的居家的绝佳选择; 3. 小区居住安静舒适,让您拥有高品质的生活环境; 4. 小区绿化率高,绿树成荫鸟语花香让您随时呼吸到新鲜空气。
-
小区配套问经纪人
缘溪堂位于北京西部政务区核心路段,位于二、三环之间,东至钓鱼台国宾馆,南至长安街仅需1,地铁1号线就在项目附近。三栋独立纯板建筑,均为22层。主要户型面积集中在300-500平方米。缘溪堂建筑由高贵故宫红质感外立面配以玻璃幕墙及铜色金属装饰条组合而成的现代幕墙。
周边配套
地址:北京市海淀区玉渊潭南路11号院
- 免费咨询
- 专业服务
- 区域解读
- 户型分析
免责声明:房源信息由网站用户提供,其真实性、合法性由信息提供者负责,最终以政府部门登记备案为准。本网站内容凡涉及面积单位均为建筑面积,本网站不声明或保证内容之正确性和可靠性,租赁该房屋时,请谨慎核查。


