中关村软件园 华夏科技大厦 312平 精装修户型方正 随时用
-
37440元/月
租金
-
精装修
装修
-
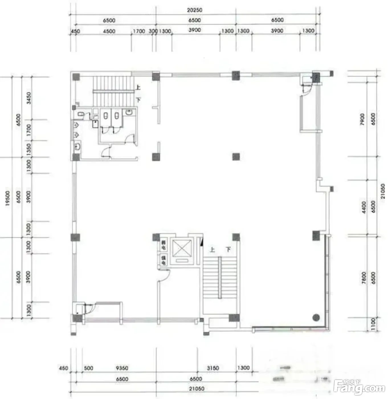
312㎡
建筑面积
租房不踩坑
3000+人正在热聊
加入群聊
-
楼盘名称
华夏科技大厦
-
区域
海淀
-
物业费
暂无
-
类型
纯写字楼
-
等级
暂无
-
挂牌时间
2025-06-03
-
支付方式
押一付三
-
入驻时间
2025-06-03
费用明细
-
押一付三
付款方式
-
37440
租金(元/月)
-
***
押金
-
***
服务费
- 房租含取暖费吗?
- 房租含物业费吗?
房源描述
-
房源亮点问经纪人
房源亮点 房源亮点 一、-房源介绍 1.项目名称:华夏科技大厦(软件园一期西二旗地铁) 2.建筑面积:312㎡518㎡695㎡ 3.价格:4元/㎡/天全含(含物业.取.暖.制.冷.发.票) 4.装修:精装修、大开间、科技公司装修 5.交通:园区有通勤车————地铁13号线西二旗站 6.交付方式:押二付三 7.周边配套:食堂餐饮 二、-项目 1.西北旺东路 2.24时安保 3.大公司聚集地 三、-周边项目 1.硅谷亮城1200平米、1500平米 2.弘源首著1300平米、1600平米、1800平米 3.盈创动力198平米、255平米、450平米、811平米、850平米、2360平米 4.中关村软件园1100平米、1580平米、1600平米等
-
服务介绍问经纪人
本人从事房地产经纪行业多年,具有丰富的从业经验。 .
-
周边配套问经纪人
所在位置繁华,周边生活配套设施齐全,生活方便,交通便利。 .
-
交通出行问经纪人
小区地理位置得天独厚,私家车和公共交通都能方便出行。 .
海淀上地
建成2004年
周边配套
地址:东北旺西路中关村软件园8号
- 免费咨询
- 专业服务
- 区域解读
- 户型分析
免责声明:房源信息由网站用户提供,其真实性、合法性由信息提供者负责,最终以政府部门登记备案为准。本网站内容凡涉及面积单位均为建筑面积,本网站不声明或保证内容之正确性和可靠性,租赁该房屋时,请谨慎核查。


