成交砸金蛋
有效期:2026.01.22-2026.01.31
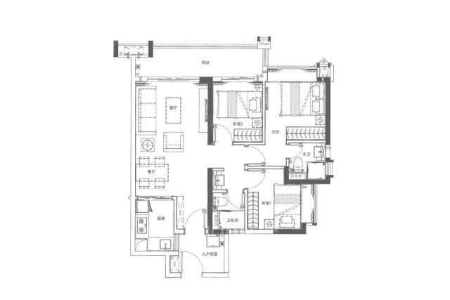
万博·广地花园
别名:廣地花園
订阅消息将通过短信及推送等形式通知您
优惠活动
楼盘价值分析报告
楼盘评分
- 项目户型 9.0
- 交通配套 9.7
- 教育配套 10.0
- 生活配套 10.0
交通配套
周边直线3km范围内有6个地铁站(大石、南村万博、沙溪、厦滘、员岗、汉溪长隆),轨道交通发达,距离最近的地铁站是大石。周边直线1km内有11个公交站,距离最近的番禺大桥站仅有380m,周边公共交通极为便捷。
教育配套
直线3km范围内有51个幼儿园。直线3km范围内有19个小学,如执信附小、时代南阳里小学、华立学校、执信中学小学、汇贤小学等。直线3km范围内有6个中学,如广州南方学院番禺附属中学、富丽中学、明德广地实验学校、广州市星执学校、沙滘中学等。
生活配套
楼盘直线3km范围内有1个一级及以上医院。其中广州市番禺区第二人民医院距离楼盘1.1km,为医疗需求提供了保障。楼盘周边3km范围内有28个商场,包括奥园国际中心·购物中心、万达广场(广州番禺店)、诺德天街、佳创盛汇、广晟万博城·晟荟潮流商业MALL(广晟·万博城店)等购物中心,商业配套成熟,完全可以满足日常购物需求。楼盘周边生态环境优越,周边3km范围内有124个公园,距离最近的仅325m,非常方便日常休闲使用。
- 总楼栋:
暂未公布
- 规划户数:
暂未公布
- 占地面积:
266000.00㎡
- 建筑面积:
暂未公布
- 楼盘动态2026-01-29
万博·广地花园在售三至四房住宅
查看全文万博·广地花园在售建面80-128㎡三至四房住宅,项目绿化率高达37%,容积率为1.99。
广州房天下
置业顾问(3)
均价约45000元/平方米,个人感觉还可以,使劲挣钱还房贷吧!70年产权的房子,使用年限久,投资的话后期升值好出手。
带装修/毛坯,起价约27000元/平方米物业管理好,环境也好,小区品质不错。
对此楼盘感兴趣的人还浏览了

越秀·鸿璟台
26800元/平方米番禺用户评分9.44分
在售地铁沿线
广州地铁地产·珑曜上城
25000元/平方米番禺-番禺市桥用户评分9.05分
在售地铁沿线低总价品牌地产宜居生态地产教育地产装修交付低密居所
保利玥玺湾
3000万元/套起天河-珠江新城用户评分9.29分
在售大平层江景地产装修交付
保利瑧誉
20000元/平方米荔湾-白鹅潭用户评分9.61分
在售地铁沿线低密居所品牌地产央企开发宜居生态地产装修交付
保利悦公馆
300万元/套起番禺-长隆万博用户评分9.33分
在售品牌地产小户型国际化社区地铁沿线宜居生态地产装修交付低密居所
首铸·铂瑞云湾
18000元/平方米番禺用户评分8.82分
在售江景地产山景地产低密居所改善优选装修交付
信达·繁花里
25000元/平方米番禺-番禺市桥用户评分9.06分
在售
星瀚TOD
26000元/平方米番禺-广州南站用户评分8.9分
在售品牌地产地铁沿线装修交付
敏捷万博金湖壹号
33000元/平方米番禺-长隆万博用户评分9.12分
在售品牌地产国际化社区低密居所地铁沿线湖景地产教育地产宜居生态地产装修交付
天地源·伴山溪谷
22000元/平方米番禺用户评分8.82分
在售品牌地产装修交付地铁沿线
打开房天下APP,查看更多内容
立即打开











































