仅1w住挑空复式 实际150平客厅朝阳 四室两厅两卫拎包入住
-
45万
总价
-
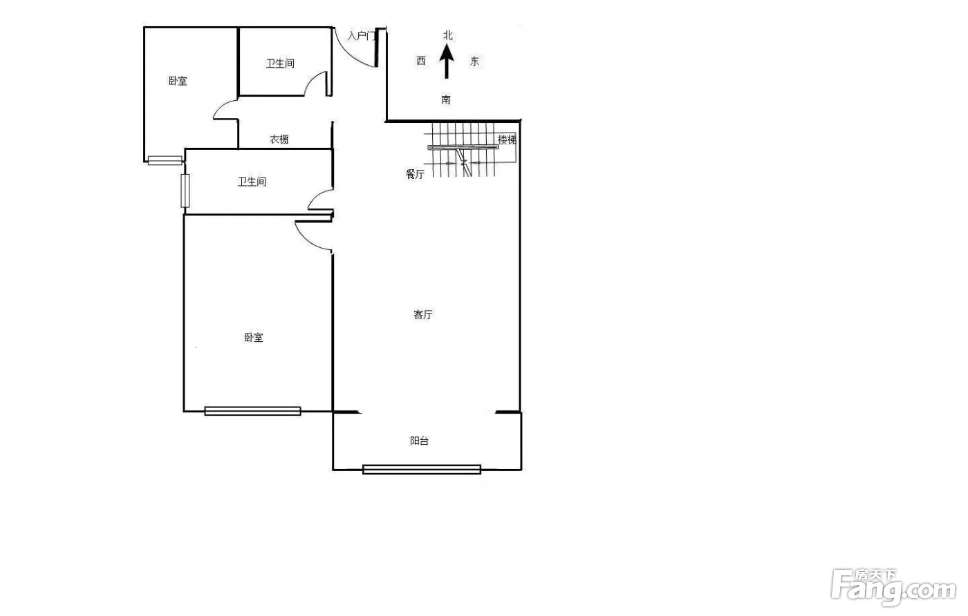
2室2厅1卫
户型
-
85㎡
建筑面积
-
单价
5294元/平米
- 挂牌价格解析
-
楼层
顶层/24层
- 咨询楼层
-
套内
暂无数据
- 咨询套内使用面积
-
楼型
板楼
-
朝向
南北
-
装修
精装修
-
年代
2014
-
发布
2026-02-05
-
深度测评
小区中经世界城(潍城-火车站)
-
更多
楼户比、楼层高度、交易历史、抵押信息
房源描述(1)
-
核心卖点问经纪人
【房屋简介】两室两厅一卫,空间布局合理,正规二居室,南北通透,采光通风俱佳。 【室内配置】带电梯入户,视野开阔,无遮挡光线好,高层位置优越,居住舒适度高。 【周边环境】周边设施齐全,生活便捷,社区环境优美,治安良好,邻里和谐。 【物业与安全】物业管理完善,24保安 守,业主素质高,居住安心。 【优势特点】空间利用大,餐厅客厅可分离,居住功能区分明确,享受品质生活。
-
业主心态问经纪人
业主很信任我,我能了解业主卖房新的动态。目前政策已经基本稳定,是入手的好时候。请不要错过性价比高的好房。
-
小区配套问经纪人
小区地理位置佳,绿化率高,环境整洁,居民素质高。 交通出行: 乘1、2、3、4、5、15、17、50、52、18、55、26、36、56路公交车到火车站下车西行100米即到 交通出行: 乘1、2、3、4、5、15、17、50、52、18、55、26、36、56路公交车到火车站下车西行100米即到 交通出行: 乘1、2、3、4、5、15、17、50、52、18、55、26、36、56路公交车到火车站下车西行100米即到 交通出行: 乘1、2、3、4、5、15、17、50、52、18、55、26、36、56路公交车到火车站下车西行100米即到
-
服务介绍问经纪人
个人宣言:用专业的打造完.美的体验,因专业产生效率!一次成交,一生朋友! 专业: 为您选房→配房→带您看房→满意→付意向→转定→签合同→首付→陪同→交易过户→新产证→放贷→交房(水电煤过户) 期待您的
-
税费分析房贷计算
关于本房税费分析详情,请电话联系我,我将提供详细的税费情况。 .
-
交通出行问经纪人
乘1、2、3、4、5、15、17、50、52、18、55、26、36、56路公交车到火车站下车西行100米即到
周边配套
交通综合评分
查看全部超过潍坊2.8%的小区
-
地铁公交
10.0
-
城际交通
4.0
本月均价 5489元/m²
环比上月 下跌 0.39%
同比去年 下跌 9.17%
猜你喜欢
同小区其它房源
户型齐全,主打户型方正,明厨,双卧朝南二居
中经世界城户型主要有76平-85平的户型方正,明厨,双卧朝南的二居 、98平-133平的户型方正,明卫,明厨,客厅朝南,全明格局,主卧朝南的三居 。
*获取完整户型报告,同时会有免费语音讲解服务
- 免费咨询
- 专业服务
- 区域解读
- 户型分析


