丽水芳洲河畔一二层下叠别墅带南开门大院送负一会客厅更名有钥匙
-
266.8万
总价
-
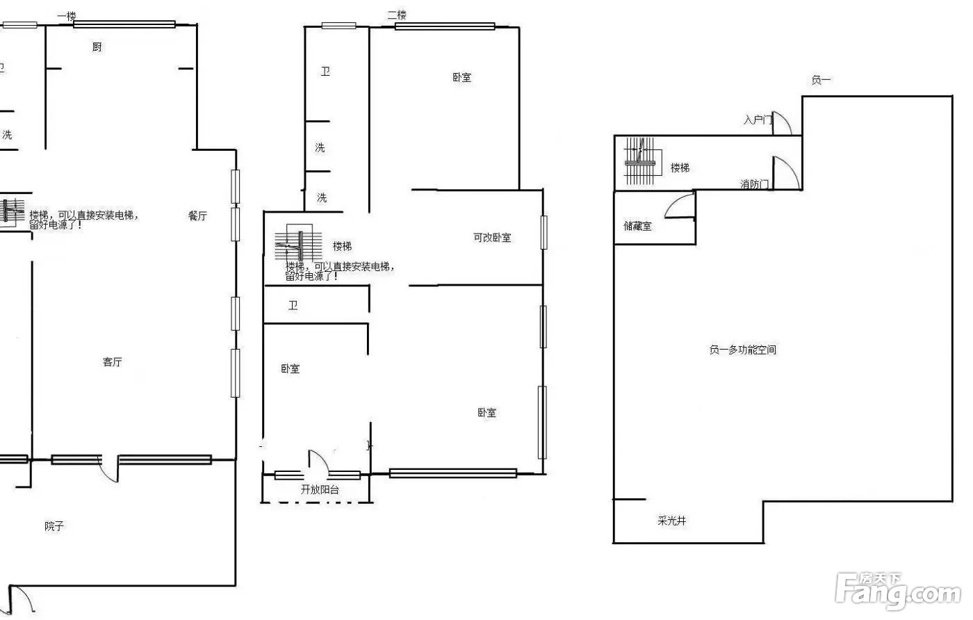
5室3厅3卫
户型
-
254.29㎡
建筑面积
-
单价
10492元/平米
- 挂牌价格解析
-
楼层
底层/5层
- 咨询楼层
-
套内
暂无数据
- 咨询套内使用面积
-
楼型
板楼
-
朝向
南北
-
装修
毛坯
-
年代
2007
-
发布
2025-10-28
-
地铁
暂无数据
-
深度测评
小区丽水芳洲(奎文-北宫街佳乐家)
-
更多
楼户比、楼层高度、交易历史、抵押信息
房源描述(1)
-
核心卖点问经纪人
装修情况:毛坯 房源特色介绍: 1、 房东诚心出售,看房方便 2、 朝向:南北,居住舒服 3、 小区周边交通便利,生活配套设施齐全,生活 便利
-
业主心态问经纪人
业主很信任我,我能了解业主卖房新的动态。目前政策已经基本稳定,是入手的好时候。请不要错过性价比高的好房。
-
小区配套问经纪人
小区地理位置佳,绿化率高,环境整洁,居民素质高。 交通出行: 乘坐28路、75路公交车在金鼎华府站下车路东即可到达本项目。
-
服务介绍问经纪人
本人从事房地产多年,公司有大量好房源,欢迎进入我的店铺查看,欢迎随时电话咨询,相信我的专业,为您置业安家保驾护航。
-
税费分析房贷计算
关于本房详情,请电话联系我,我将提供详细的税费情况。 .
周边配套
地址:鸢飞路与卧龙东街交叉口北300米路东
本月均价 6636元/m²
环比上月 下跌 0.31%
同比去年 下跌 6.79%
猜你喜欢
同小区其它房源
-
6599元/㎡
本月挂牌均价
-
持平
环比上月
- 免费咨询
- 专业服务
- 区域解读
- 户型分析
免责声明:房源信息由网站用户提供,其真实性、合法性由信息提供者负责,最终以政府部门登记备案为准。本网站不声明或保证内容之正确性和可靠性,购买该房屋时,请谨慎核查。入学情况仅凭历史经验总结,在此不承诺升学事宜。请您在签订合同之前,切勿支付任何形式的费用,以免上当受骗。


