五里桥·南园新村·1室·1厅
-
310万
总价
-
1室1厅1卫
户型
-
40㎡
建筑面积
买房加房产交流群,省钱不踩雷
3000+人正在热聊
-
单价
77578元/平米
- 挂牌价格解析
-
楼层
低楼层/19层
- 咨询楼层
-
套内
暂无数据
- 咨询套内使用面积
-
楼型
板楼
-
朝向
西南
-
装修
精装
-
年代
1988
-
发布
2025-06-01
-
地铁
距4号线鲁班路站约209米
-
咨询总首付
首付约77.9万
首付税费及佣金情况 -
深度测评
小区南园小区(黄浦-打浦桥)
-
更多
楼户比、楼层高度、交易历史、抵押信息
房源描述(1)
-
核心卖点问经纪人
中居锦明刘文昌:本人实地拍摄,确保房源真实、有效,房东诚意出售,看房随时,价格可谈! 采光: 采光不挡,小区前排,小区绿化规划好。
-
业主心态问经纪人
【业主情况】:产权2个人,上海本地人,签约随时。 【房源情况】:无贷款,1个户.口。房子清清爽爽。
-
小区配套问经纪人
【轨道交通】: 4号线鲁班站,13号线世博园站,9号线打浦桥站,9/13号线马当路、 【出门配套】日月光,田子坊,新邻生活广场,世博滨江,老西门、城隍庙,南京步行街 【配套】荷花池幼.儿.园,爱童幼.儿.园,思南幼.儿.园, 中山中學接受外区转学等优.质 【医疗配套】上海市第九人民(三级甲等)、瑞金卢湾分院(二级甲等),田子坊医.院 【商业配套】上海银行,建设银行,邮政银行,平安银行,中国银行、工商银行;香港龙凤楼、凯德晶萃地下商业广场,汇景生活广场,联华超市,静安面包坊,蔡先生传统小吃,赛百味,智造局创业园等
-
服务介绍问经纪人
本人刘文昌2015年正式在上海从事行业今。精通行业的所有专业流程和客户需求的房源配比!主营上海以及上海周边的一手房和上海中高端二手房操作业务。我的宗旨:想您所想!排您所优!归锦明房地产
-
户型解读问经纪人
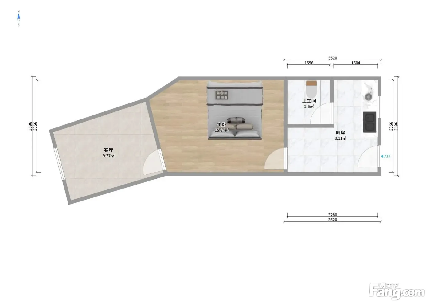
房源:产证面33.42平米,利用面积合理, 户型:厅南北通,主卧朝南带阳台, 厨卫全明,房型正气,得.房.率,高。
周边配套
交通综合评分
查看全部超过上海46.5%的小区
-
地铁公交
10.0
-
城际交通
5.0
本月均价 73218元/m²
环比上月 持平
同比去年 下跌 12.83%
猜你喜欢
同小区其它房源
户型齐全,主打二居
南园小区户型主要有63平-78平的的二居 、45平-51平的户型方正,明厨,主卧朝南的一居 、103平-103平的明厨的三居 。
*获取完整户型报告,同时会有免费语音讲解服务
-
90551元/㎡
本月挂牌均价
-
持平
环比上月
买房加房产交流群,省钱不踩雷
3000+人正在热聊
- 免费咨询
- 专业服务
- 区域解读
- 户型分析


