新村路嘉华苑+小区中间+大复试南北通+有露台+看房方便
-
750万
总价
-
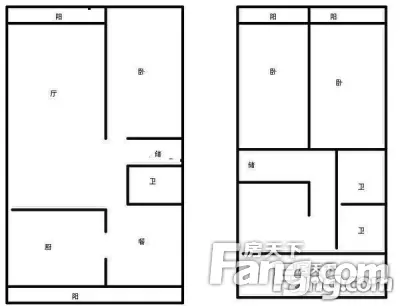
4室2厅2卫
户型
-
156.96㎡
建筑面积
买房加房产交流群,省钱不踩雷
3000+人正在热聊
加入群聊
-
单价
47783元/平米
- 挂牌价格解析
-
楼层
高楼层/6层
- 咨询楼层
-
套内
暂无数据
- 咨询套内使用面积
-
楼型
板楼
-
朝向
南
-
装修
简装
-
供暖
暂无数据
-
年代
2002
-
发布
2024-05-06
-
地铁
距7号线新村路站约671米
-
咨询总首付
首付约224.6万
首付税费及佣金情况 -
深度测评
小区嘉华苑(宝山-大华)
-
更多
楼户比、楼层高度、交易历史、抵押信息
周边配套
地址:新村路789弄、新沪路197弄
交通综合评分
查看全部8.3
“较好”
超过上海68.1%的小区
-
地铁公交
10.0
-
驾车出行
10.0
-
城际交通
4.5
本月均价 52570元/m²
环比上月 持平
同比去年 下跌 11.93%
猜你喜欢
同小区其它房源
户型齐全,主打户型方正,明卫,明厨,双卧朝南,主卧朝南三居
嘉华苑户型主要有107平-141平的户型方正,明卫,明厨,双卧朝南,主卧朝南的三居 、60平-99平的户型方正,明卫,明厨的二居 。
*获取完整户型报告,同时会有免费语音讲解服务
-
46955元/㎡
本月挂牌均价
-
持平
环比上月
买房加房产交流群,省钱不踩雷
3000+人正在热聊
加入群聊
免责声明:房源信息由网站用户提供,其真实性、合法性由信息提供者负责,最终以政府部门登记备案为准。本网站不声明或保证内容之正确性和可靠性,购买该房屋时,请谨慎核查。入学情况仅凭历史经验总结,在此不承诺升学事宜。请您在签订合同之前,切勿支付任何形式的费用,以免上当受骗。



