洋泾豪宅,高区景观新出全南2房,精装带地暖,送地下产权车位!
-
835万
总价
-
2室2厅2卫
户型
-
119.23㎡
建筑面积
买房加房产交流群,省钱不踩雷
3000+人正在热聊
-
单价
70033元/平米
- 挂牌价格解析
-
楼层
高层/20层
- 咨询楼层
-
套内
104.92㎡
- 咨询套内使用面积
-
楼型
砖楼
-
朝向
南北
-
装修
精装修
-
年代
2000
-
发布
2026-03-18
-
地铁
距6号线北洋泾路站约408米
-
咨询总首付
首付约481.8万
首付税费及佣金情况 -
深度测评
小区中星海上景庭(浦东-洋泾)
-
更多
楼户比、楼层高度、交易历史、抵押信息
-
核验码
202510444819
房源描述(1)
-
核心卖点问经纪人
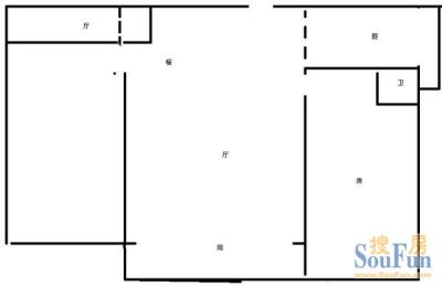
□分析前须知□ 房东是2019年装修,一直是,目前是置换改善。 □产证内分析□ 2房2厅2卫;全屋地暖,地板也是黄色的地砖; 客厅有22.5平朝南带5.5个平方大阳台,餐厅有17.8平和客厅相连; 2个卧室都朝南,主卧有18.4平朝南,进口典雅简欧实木大床,经典实木的橱柜也是品牌; 朝南次卧有14.1平方; 主卫有5.4个平方,客卫有5.4个平方朝东; 厨房有近7个平方朝南带2.9平工作阳台。
-
业主心态问经纪人
房东目前也在看房,当初这个房子就是2018年和我经理买的,税费房东自理,并且价格也优于市场价将近80W,就是要置换出售。
-
小区配套问经纪人
小区地理位置好,配套设施齐全,交通便利,居民素质高。
-
服务介绍问经纪人
本人入行5年,截止2026年1月1日,成交客户150个(老客户转介绍50个),业主通过间接出售71套,服务费都在过户方收,服务都是提前做到,并且费用可谈,谈判双方见面,完全公开透明。
-
税费分析房贷计算
产权干净,税费清晰,欢迎来电咨询该房屋详情,静候您的来电!
-
户型解读问经纪人
房屋户型方正,景观布局合理,设计实用,空间舒适,格局优越,采光通风良好
周边配套
交通综合评分
查看全部超过上海2.1%的小区
-
地铁公交
10.0
本月均价 83046元/m²
环比上月 持平
同比去年 下跌 4.24%
猜你喜欢
同小区其它房源
户型齐全,主打户型方正,明卫,独立衣帽间,客厅朝南,双阳台,主卧朝南三居
中星海上景庭户型主要有130平-156平的户型方正,明卫,独立衣帽间,客厅朝南,双阳台,主卧朝南的三居 、107平-120平的明厨,双卧朝南,主卧朝南的二居 、147平-181平的户型方正,明卫,明厨,双阳台,双卧朝南,主卧朝南的四居 。
*获取完整户型报告,同时会有免费语音讲解服务
-
67991元/㎡
本月挂牌均价
-
持平
环比上月
买房加房产交流群,省钱不踩雷
3000+人正在热聊
- 免费咨询
- 专业服务
- 区域解读
- 户型分析

