新月明珠园 南北通透 2室2厅 80平 采光好 周边商圈成熟
-
135万
总价
-
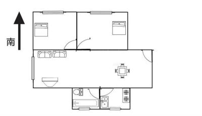
2室2厅1卫
户型
-
80.97㎡
建筑面积
买房加房产交流群,省钱不踩雷
3000+人正在热聊
-
单价
16673元/平米
- 挂牌价格解析
-
楼层
顶层/6层
- 咨询楼层
-
套内
暂无数据
- 咨询套内使用面积
-
楼型
板楼
-
朝向
南北
-
装修
简装修
-
年代
2014
-
发布
2025-09-24
-
地铁
暂无数据
-
咨询总首付
首付约34.3万
首付税费及佣金情况 -
深度测评
小区新月明珠园(宝山-月浦)
-
更多
楼户比、楼层高度、交易历史、抵押信息
-
核验码
202509929067
房源描述(1)
-
核心卖点问经纪人
买点1、房东 海本地人,产权一人,满五年,比较爽气,价格可谈 买点2、出小区门口就是盛桥公交站,小区门口多路公交 买点3、户型正气阳光好,楼层好,视野采光不挡 买点4、业主置换定好房,诚意出
-
业主心态问经纪人
业主诚心出售,产权清晰,诚心出售,随时看房 1、业主是和我们公司签了代理出售委托书, 2、每套出售房源我们都会到现场勘查, 3、房东的产权资料齐全,我们公司有备份, 4、您的时间很宝贵,我们团队做高效正确的事情
-
小区配套问经纪人
位置:小区地理位置佳,绿化率高,居民素质高 配套:有健身器材,小型篮球场,可供小区居民使用 车位:停车位充足,建有地上停车场和地下车库 保安:小区内24保安巡逻
-
服务介绍问经纪人
本人从事房地产多年,公司有大量好房源,欢迎进入我的店铺查看,欢迎随时电话咨询,相信我的专业,为您置业安家保驾护航。
周边配套
交通综合评分
查看全部超过上海18.1%的小区
-
地铁公交
5.0
本月均价 17755元/m²
环比上月 持平
同比去年 上涨 5.13%
猜你喜欢
同小区其它房源
户型齐全,主打二居
新月明珠园户型主要有Infinity平--Infinity平的的二居 、126平-126平的户型方正,明卫,明厨,双卧朝南,主卧朝南的三居 、55平-55平的户型方正,明卫,明厨的一居 。
*获取完整户型报告,同时会有免费语音讲解服务
-
22379元/㎡
本月挂牌均价
-
持平
环比上月
买房加房产交流群,省钱不踩雷
3000+人正在热聊
- 免费咨询
- 专业服务
- 区域解读
- 户型分析


