业主已经定好亿元别墅!降价1000万急售!总共3层!送车库!
-
4888万
总价
-
4室2厅6卫
户型
-
548.34㎡
建筑面积
买房加房产交流群,省钱不踩雷
3000+人正在热聊
-
单价
89142元/平米
- 挂牌价格解析
-
楼层
低层/26层
- 咨询楼层
-
套内
暂无数据
- 咨询套内使用面积
-
楼型
板楼
-
朝向
南北
-
装修
精装修
-
年代
2018
-
发布
2024-11-09
-
地铁
距9号线小南门站约56米
-
咨询总首付
首付约1464.8万
首付税费及佣金情况 -
深度测评
小区融创外滩壹号院(黄浦-董家渡)
-
更多
楼户比、楼层高度、交易历史、抵押信息
-
核验码
202307767357
房源描述(1)
-
核心卖点问经纪人
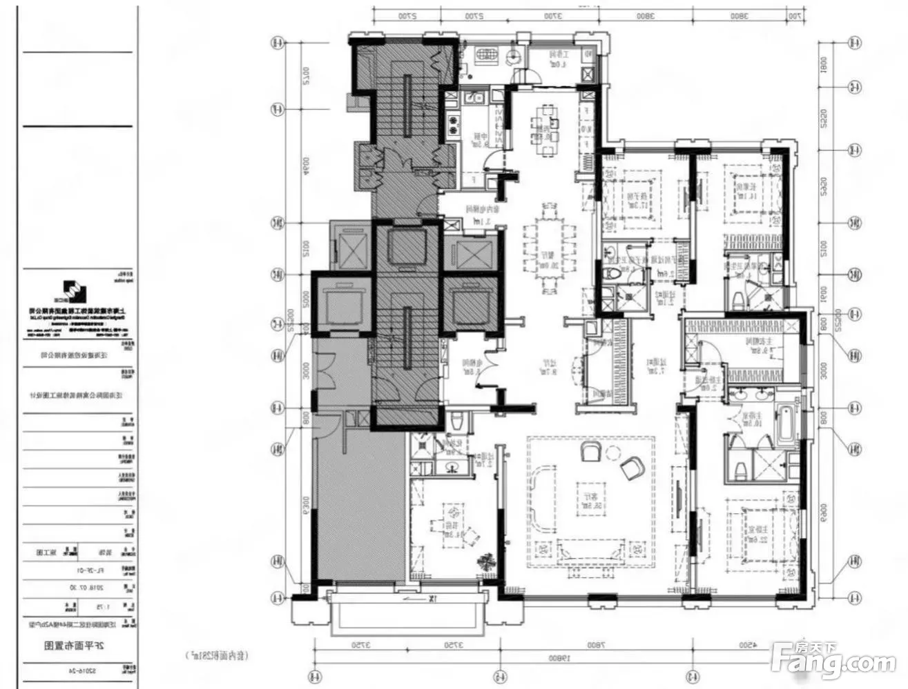
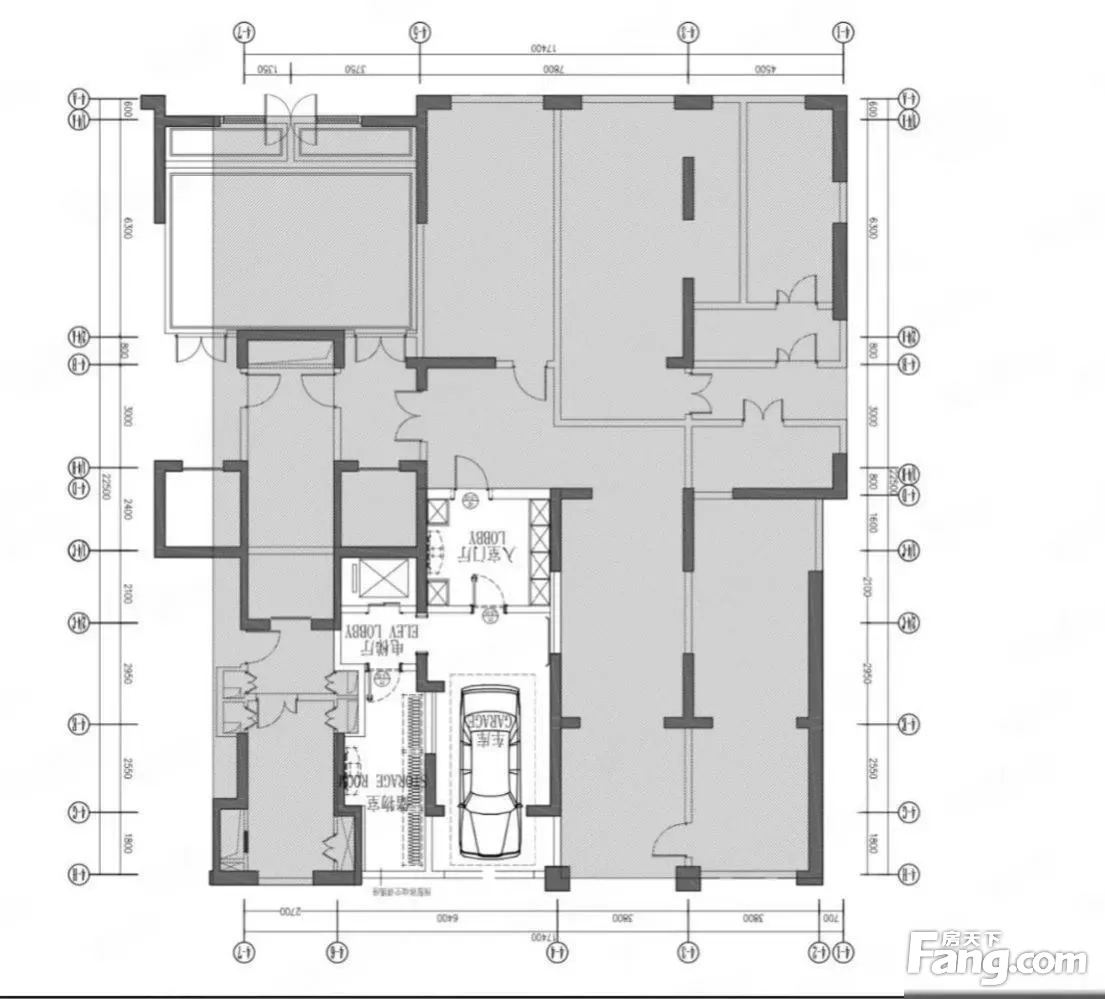
户型介绍:面积:548.34平! 4室3厅6卫!总共3层!地上338平米,地下209平米,4套房设计。带独立车库!可停2辆车! 装修花了1500万!简约轻奢!欧洲浅色系风格,视觉胜过样板间,法国巴卡拉水晶吊灯!意大利罗伯特家具!548平别墅居住体验!全新装修!基本未住过! 房屋卖点1、平层别墅体验,南北东三面采光,地正规四房金元宝户型!小区只此一套!
-
业主心态问经纪人
业主已经买了亿元新房别墅!置换,一定要把这套房子卖掉!协商多次,才降价诚售!
-
小区配套问经纪人
小区地理位置好,配套设施齐全,交通便利,居民素质高。9号线小南门地铁站!小区人车分流!花园,水系景观都有!楼下自带商业!
-
服务介绍问经纪人
本人从事房地产多年,公司有大量好房源,欢迎进入我的店铺查看,欢迎随时电话咨询,相信我的专业,为您置业安家保驾护航。
-
税费分析房贷计算
新房: 房税费首套房契税1至3个点。 物业费2元到3元一平方。 购买新房主要税费: 契税:90平以内:1% ;90-124 平收1.5%;124平以上收2%(交房后地税收取) 注:以上收费仅供参考
周边配套
交通综合评分
查看全部超过上海85.8%的小区
-
地铁公交
10.0
本月均价 111334元/m²
环比上月 持平
同比去年 下跌 6.01%
猜你喜欢
同小区其它房源
-
112155元/㎡
本月挂牌均价
-
持平
环比上月
买房加房产交流群,省钱不踩雷
3000+人正在热聊
- 免费咨询
- 专业服务
- 区域解读
- 户型分析


