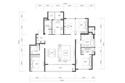
绿城·理想之城云栖 6室 3厅 185平米
-
1400万
总价
-
4室3厅
户型
-
185㎡
建筑面积
买房加房产交流群,省钱不踩雷
3000+人正在热聊
加入群聊
-
单价
75676元/平米
- 挂牌价格解析
-
楼层
低楼层/6层
- 咨询楼层
-
套内
暂无数据
- 咨询套内使用面积
-
朝向
南北
-
装修
未装修
-
发布
2025-11-01
-
咨询总首付
首付约609.5万
首付税费及佣金情况 -
深度测评
小区绿城·云栖(李沧-金水路)
-
更多
楼户比、楼层高度、交易历史、抵押信息
周边配套
地址:广水路与延川路交汇处(绿城·玫瑰园东侧)
交通综合评分
查看全部4.7
“一般”
超过青岛0.0%的小区
-
地铁公交
5.0
-
驾车出行
9.0
本月均价 36775元/m²
环比上月 上涨 0.38%
同比去年 上涨 2.7%
猜你喜欢
同小区其它房源
-
19405元/㎡
本月挂牌均价
-
0.97%
环比上月
买房加房产交流群,省钱不踩雷
3000+人正在热聊
加入群聊
免责声明:房源信息由网站用户提供,其真实性、合法性由信息提供者负责,最终以政府部门登记备案为准。本网站不声明或保证内容之正确性和可靠性,购买该房屋时,请谨慎核查。入学情况仅凭历史经验总结,在此不承诺升学事宜。请您在签订合同之前,切勿支付任何形式的费用,以免上当受骗。



